Appartement à louer - Chemin De Sur La Croix, 1020 Renens VD
Pourquoi vous aimerez ce bien
Quartier résidentiel calme
Accès jardin privé
Entièrement meublé pour colocation
Organiser une visite
Réserver une visite aujourd'hui !
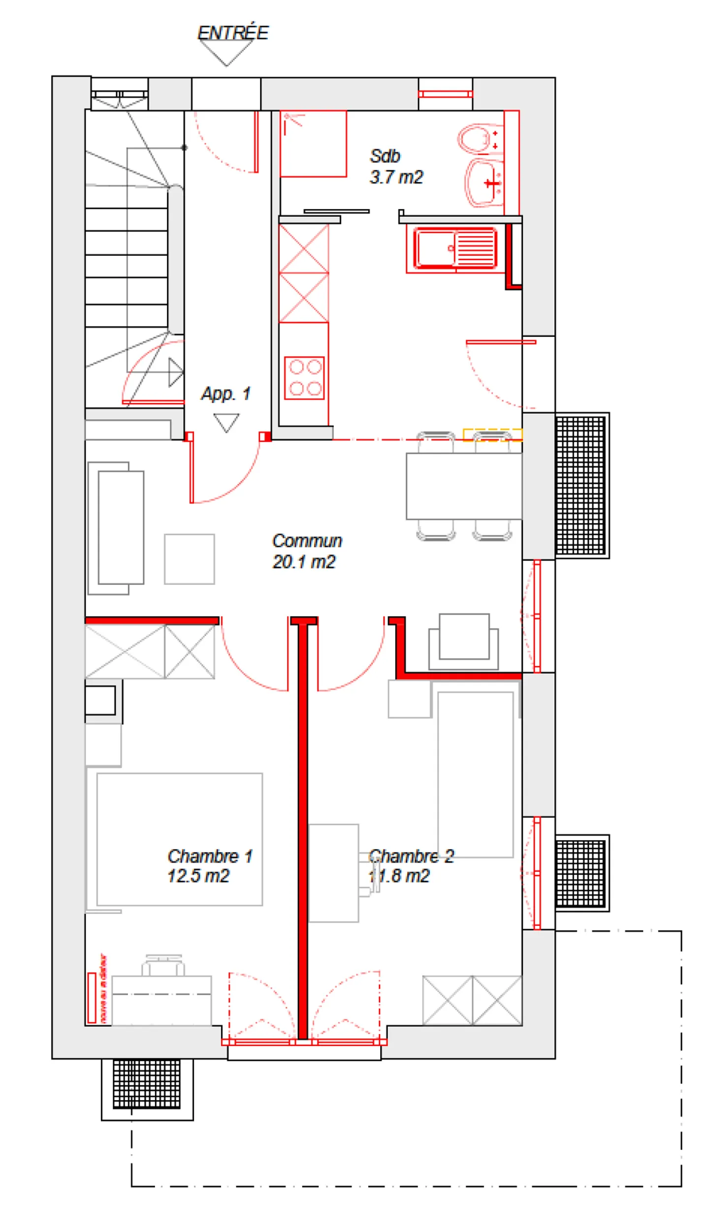
Appartement neuf de 2.5 pièces, meublé, idéal pour colocation
Appartement neuf en cours de finition, situé dans une maison mitoyenne, au rez-de-chaussée avec un jardin privatif. Quartier résidentiel très calme, sans issue, à 2 minutes à pied de la ligne de bus No 18, à moins de 15 minutes de l'ECAL.
Ce logement de 51 m2 a été pensé et aménagé avec soin pour une colocation. Il est entièrement meublé.
Il comprend une entrée avec coin séjour, une cuisine totalement agencée ouverte avec coin à manger, une salle de douches-WC, deux chambres à coucher entièrement ...
Détail des loyers
- Loyer net
- CHF 2’680
- Coûts supplémentaires
- CHF 180
- Total des loyers
- CHF 2’680
Détails du bien
- Disponible à partir de
- Sur accord
- Pièces
- 2.5
- Année de rénovation
- 2026



