Appartement à louer - Cadonaustrasse, 7000 Chur
Pourquoi vous aimerez ce bien
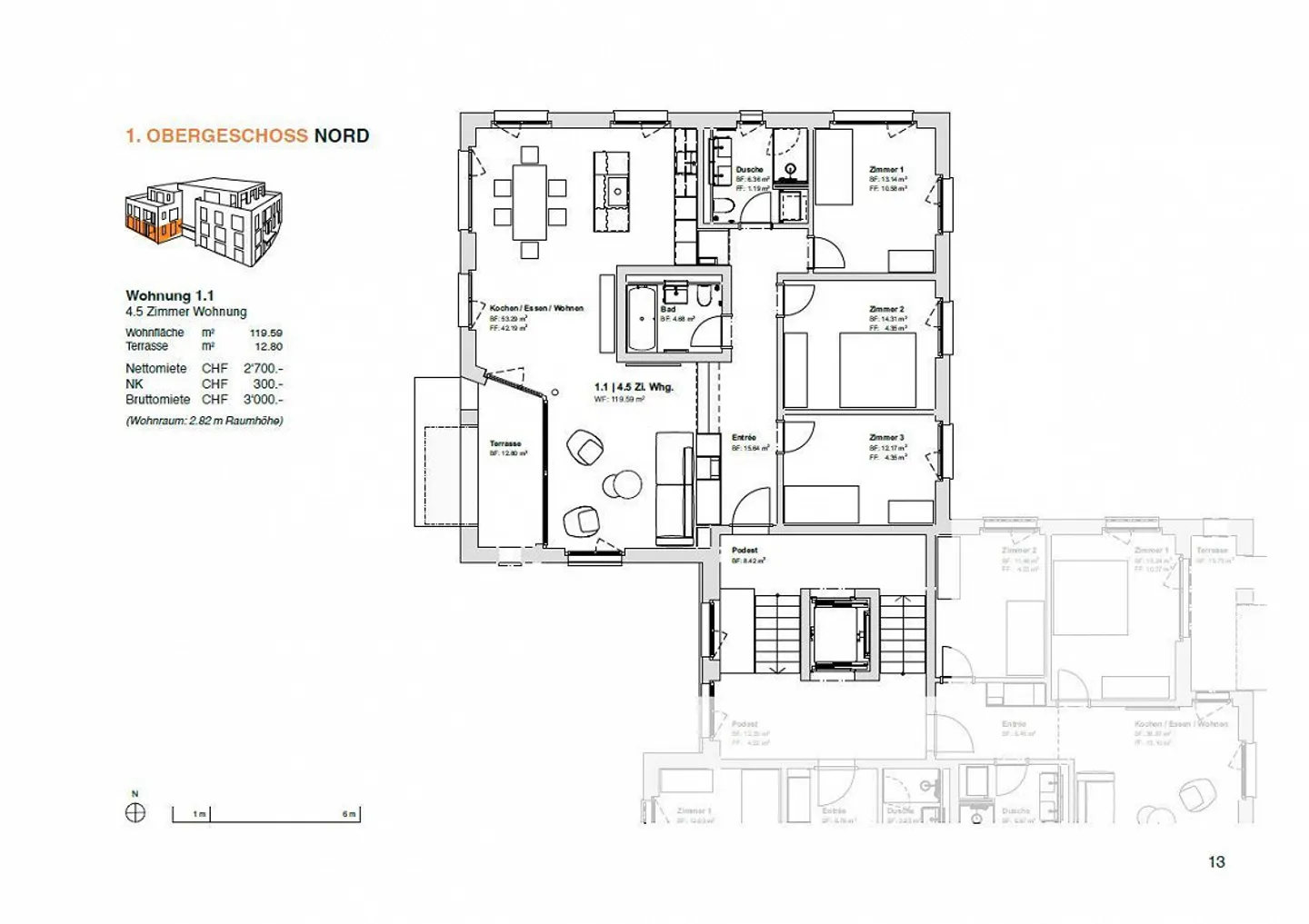
Intérieur élégant
Plafonds de plus de 2,80 m
Terrasse pour se détendre
Organiser une visite
Réserver une visite aujourd'hui !
Maison G - Vivre en hauteur et profiter de la nature - Nouveau développement
Vivre en hauteur – profiter de la nature – vivre près de la ville - Cela décrit le mieux le nouveau développement Töbeli à la limite nord de l'agglomération de Chur. Dans une première phase, 54 appartements modernes à louer de 2,5 à 5,5 pièces sont en cours de construction dans les maisons D à I.
Les appartements impressionnent par des plans d'étage bien pensés, des espaces de vie lumineux et un aménagement intérieur élégant. Le projet prévu allie vie moderne à proximité de la nature et de la vil...
Détail des loyers
- Loyer net
- CHF 3’000
- Coûts supplémentaires
- CHF 300
- Total des loyers
- CHF 3’000
Détails du bien
- Disponible à partir de
- Sur accord
- Pièces
- 4.5
- Année de construction
- 2026
- Surface habitable
- 119 m²
- Étage
- 1er
- Étages du bâtiment
- 4



