1 / 6

Appartement à louer - Brückenstrasse, 8280 Kreuzlingen

1.5 pièce
CHF 1’290.-
-

Pourquoi vous aimerez ce bien

Espace de vie lumineux

Cuisine moderne avec lave-vaisselle

Balcon calme pour se détendre

Organiser une visite

Réserver une visite aujourd'hui !

immokanzlei AG
Cette description a été traduite automatiquement depuis Allemand.

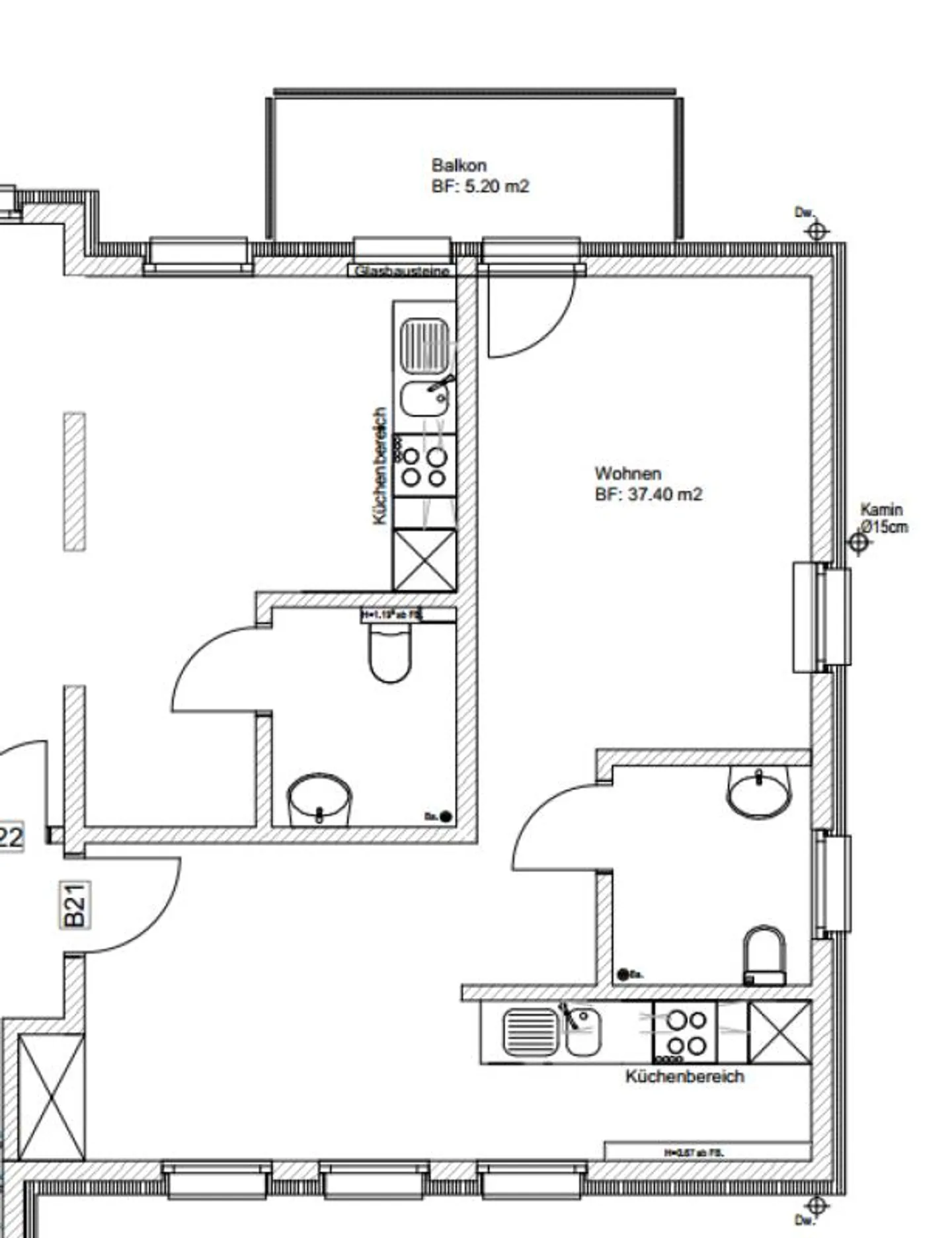
Appartement 1½ pièces proche de la frontière avec beau balcon ouest/sud

Cet bel appartement de ville lumineux et ouvert (adapté pour une personne) a été entièrement modernisé et rénové.

L'appartement est situé au centre, dans une rue secondaire (zone 30 km/h). La frontière allemande et l'arrêt de bus sont "juste devant la porte".

Tous les pièces ont un beau sol en stratifié. La cuisine a un sol en pierre clair et accueillant. La cuisine lumineuse est équipée d'une cuisinière en céramique et d'un lave-vaisselle et permet encore de placer une petite table à manger. La b...

Détails du bien

Disponible à partir de
Sur accord
Pièces
1.5
Salles de bain
1
Année de rénovation
2016

Caractéristiques

Balcon
Ascenseur
Nouveau développement
TV par câble
Adapté aux fauteuils roulants

Agence

immokanzlei AG
Adresse:Rheinstrasse, 8280, Kreuzlingen
Ref: 1½ Zi.-Whg. B21 2. OG
En ligne depuis
17/10/2025
il y a 1 jour

Localisation

Brückenstrasse, 8280 Kreuzlingen

Sources