Appartement en terrasse à louer - Avenue Adrien- Lachenal, 1290 Versoix
Pourquoi vous aimerez ce bien
Deux terrasses spacieuses
Séjour lumineux avec cheminée
Chambre parentale avec salle d'eau
Organiser une visite
Réserver une visite avec Service aujourd'hui !
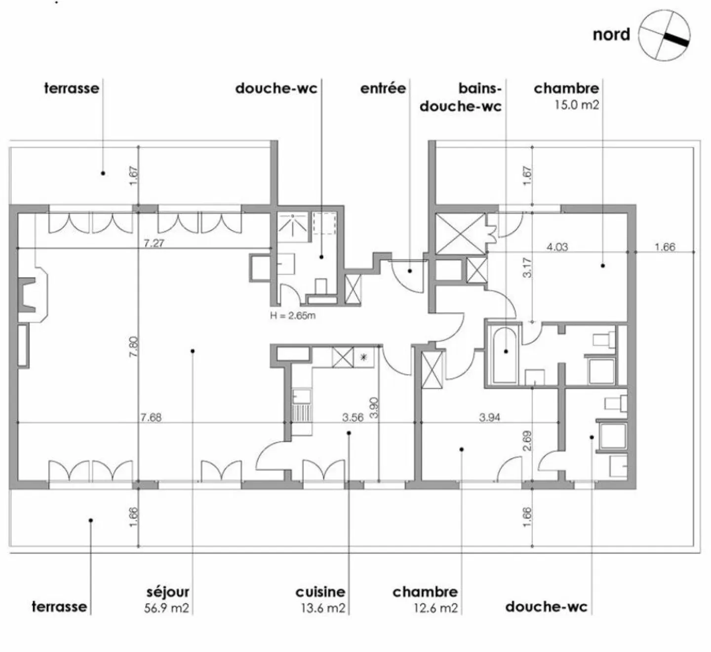
5 pièces en attique avec deux terrasses
Versoix- Spacieux 5 pièces en attique avec 2 terrasses et une vue dégagée sur le lac
Référence : 5210-603
Adresse : Avenue Adrien-Lachenal , 1290 Versoix
Loyer : CHF 3'200.- + CHF 260.- charges
Disponibiliité: 01.04.2026
Cet appartement lumineux et traversant situé à quelques minutes de la gare de Versoix se compose comme suit :
- Deux terrasses avec vue dégagée sur le lac
- Spacieux séjour de 60m2 avec cheminée fonctionnelle
- Cuisine agencée et équipée
- Chambre parentale avec dressing et salle de dou...
Détail des loyers
- Loyer net
- CHF 3’200
- Coûts supplémentaires
- CHF 260
- Total des loyers
- CHF 3’460
Détails du bien
- Disponible à partir de
- 01.04.2026
- Pièces
- 5
- Salles de bain
- 3
- Étage
- 6ème



