Appartement à louer - Mühlewiesestrasse 9, 8355 Aadorf
Pourquoi vous aimerez ce bien
Belle terrasse sur le toit
Emplacement calme et idyllique
Proche des écoles et des transports
Organiser une visite
Réserver une visite aujourd'hui !
Vivre sur deux étages dans la verdure !
Dans un emplacement calme et idyllique, nous louons cet appartement bien équipé avec les avantages suivants :
- Emplacement calme
- Salle de bain/WC
- WC séparé
- Belle terrasse sur le toit
- Proche de l'école/des installations sportives/de la piscine intérieure et extérieure
- Proche de la gare
- Proche de l'accès à l'autoroute
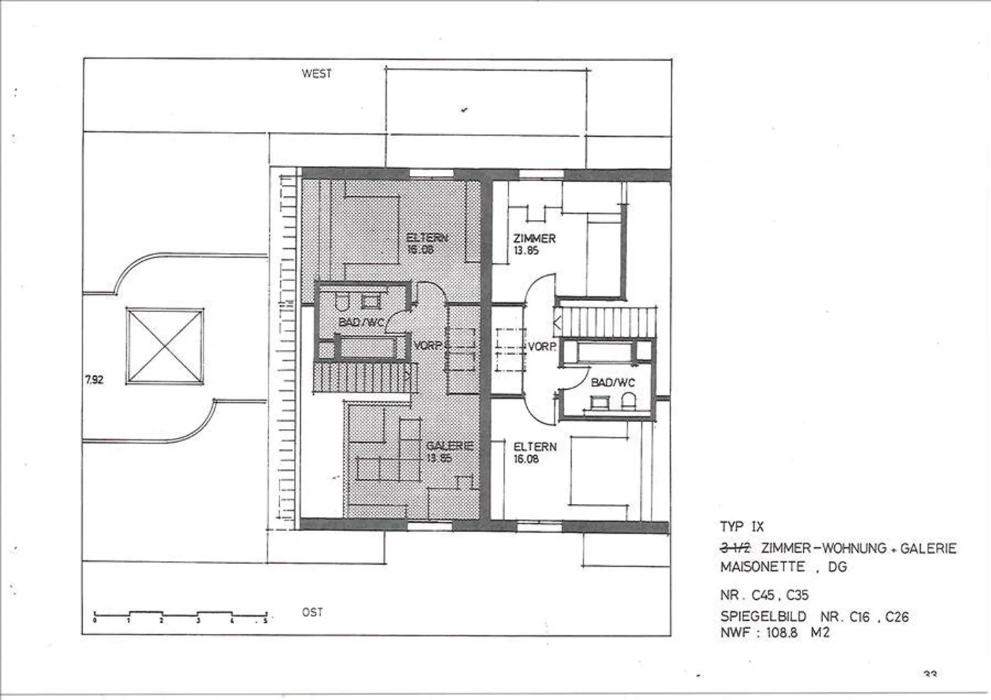
- Appartement en duplex moderne de 108 m2
- Bonnes possibilités d'achat
- Places de parking disponibles pour 110 CHF.-- par mois.
Les images montrent un appartement de type similai...
Détail des loyers
- Loyer net
- CHF 2’210
- Coûts supplémentaires
- CHF 320
- Total des loyers
- CHF 2’210
Détails du bien
- Disponible à partir de
- 01.03.2026
- Pièces
- 3.5
- Année de construction
- 1991
- Surface habitable
- 108 m²
- Étage
- 2ème



