Appartement à louer - Rue Du Verneret 8c, 1373 Chavornay
Pourquoi vous aimerez ce bien
Cuisine ouverte spacieuse
Balcon avec belle vue
Accès ascenseur disponible
Organiser une visite
Réserver une visite avec Christiane aujourd'hui !
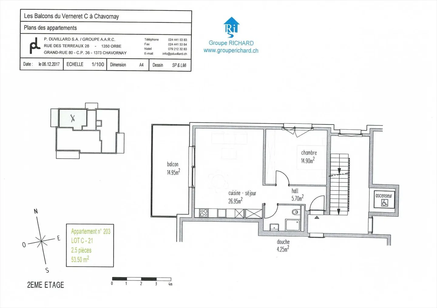
Appartement 2.5 pièces
Joli 2,5 pièces à louer à Chavornay pour le 1er décembre 2025 ou à convenir
Rue du Verneret 8C à Chavornay, proche des terrains de sport, à proximité de l'entrée d'autoroute, appartement de 53.5 m2, comprenant :
- entrée-hall
- cuisine entièrement agencée ouverte sur un grand séjour
- 1 chambre
- salle de douche/WC
- un balcon
Une cave au sous-sol avec raccordement pour l'installation d'une colonne de lavage (les machines ne sont pas fournies, il n'y a pas de buanderie commune dans l'immeuble).
L'immeub...
Détail des loyers
- Loyer net
- CHF 1’520
- Coûts supplémentaires
- CHF 170
- Total des loyers
- CHF 1’520
Détails du bien
- Disponible à partir de
- Sur accord
- Pièces
- 2.5
- Salles de bain
- 1
- Surface habitable
- 53 m²


