Appartement à louer - Schützenmatt 8, 3280 Murten
Pourquoi vous aimerez ce bien
Cuisine moderne avec lave-vaisselle
Balcon pour se détendre
Pas de dépôt requis
Organiser une visite
Réserver une visite aujourd'hui !
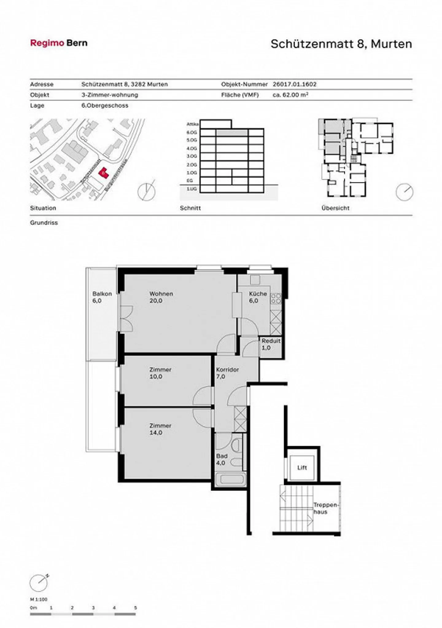
MIETEN OHNE KAUTION - Lebendiges Quartier nahe dem Städtchen Murten
In einer gepflegten Wohnsiedlung steht diese zeitgemässe und komfortable Wohnung für Sie bereit. Das charmante Dörfchen Murten, den öffentlichen Verkehr sowie den Murtensee erreichen Sie in wenigen Gehminuten.
Für Ihre Wohnqualität:
\- abgeschlossene Küche mit Glaskeramik und Geschirrspüler
\- Parkett- und Plattenböden
\- Nasszelle mit Badewanne/WC
\- Balkon
\- Reduit
\- Lift
\- Keller
Zusätzlich auf Wunsch: Einstellhallenplatz für CHF 100.00/ monatlich.
Die Fotos stammen von einer typenähnlichen Wohnung.
Détail des loyers
- Loyer net
- CHF 1'560
- Coûts supplémentaires
- CHF 220
- Total des loyers
- CHF 1'560
Détails du bien
- Disponible à partir de
- 01.08.2026
- Pièces
- 3
- Année de construction
- 1971
- Surface habitable
- 61 m²
- Étage
- 6ème



