Studio à louer - Neustadtgasse 8, 8400 Winterthur
Pourquoi vous aimerez ce bien
Atmosphère historique charmante
Intérieurs lumineux et colorés
Idéal pour la collaboration créative
Organiser une visite
Réserver une visite avec Tiziana aujourd'hui !
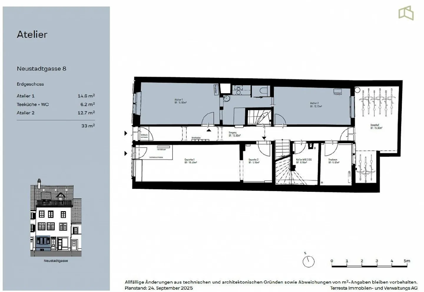
Atelier polyvalent dans un emplacement populaire de la vieille ville
L'atelier fraîchement rénové au rez-de-chaussée de la propriété historique située au Neustadtgasse 8 vous offre 33 m² pleins de caractère et d'inspiration. Deux charmantes salles d'atelier avec des lambris en bois historiques et des stucs créent une atmosphère unique pour les esprits créatifs, les artistes ou le travail tranquille.
Points forts de l'atelier :
- Accès par l'entrée de la maison de manière discrète et indépendante
- Deux salles d'atelier (14,6 m² et 12,7 m²) avec un parquet poncé et h...
Détail des loyers
- Loyer net
- CHF 1’490
- Coûts supplémentaires
- CHF 80
- Total des loyers
- CHF 1’490
Détails du bien
- Disponible à partir de
- Sur accord
- Année de construction
- 1648
- Année de rénovation
- 2025
- Étage
- Rez



