1 / 8

Appartement à louer - Rheinfelsstrasse 72, 7000 Chur

3.5 pièces • 79 m² • 2ème étage
CHF 1’980.-
CHF 301 m² / year

Pourquoi vous aimerez ce bien

Espace de vie spacieux

Deux salles de bains modernes

Conception écoénergétique

Organiser une visite

Réserver une visite avec Pelaggi aujourd'hui !

Pelaggi
Cette description a été traduite automatiquement depuis Allemand.

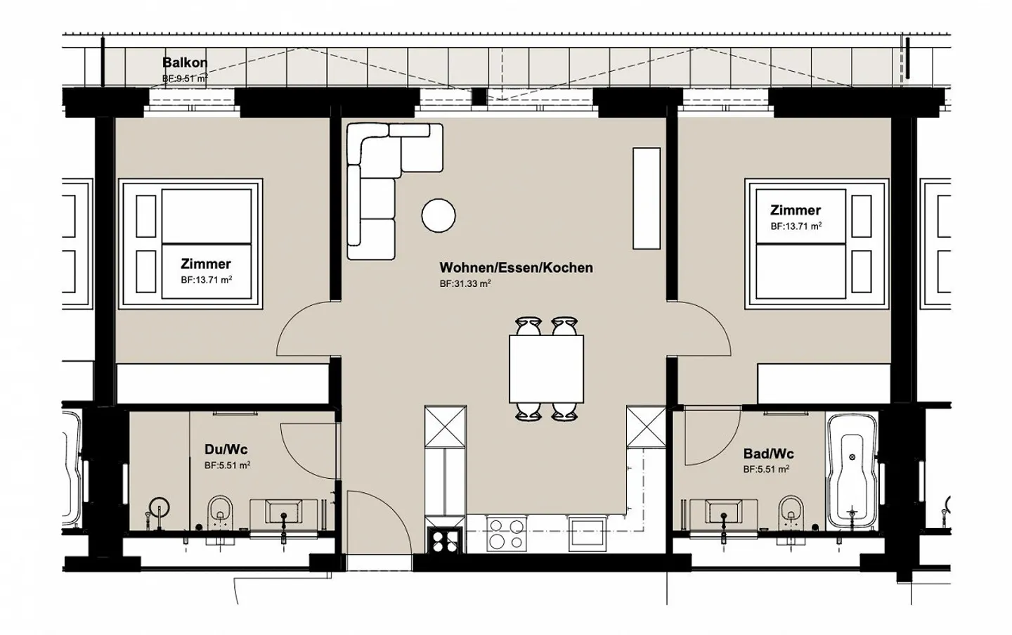
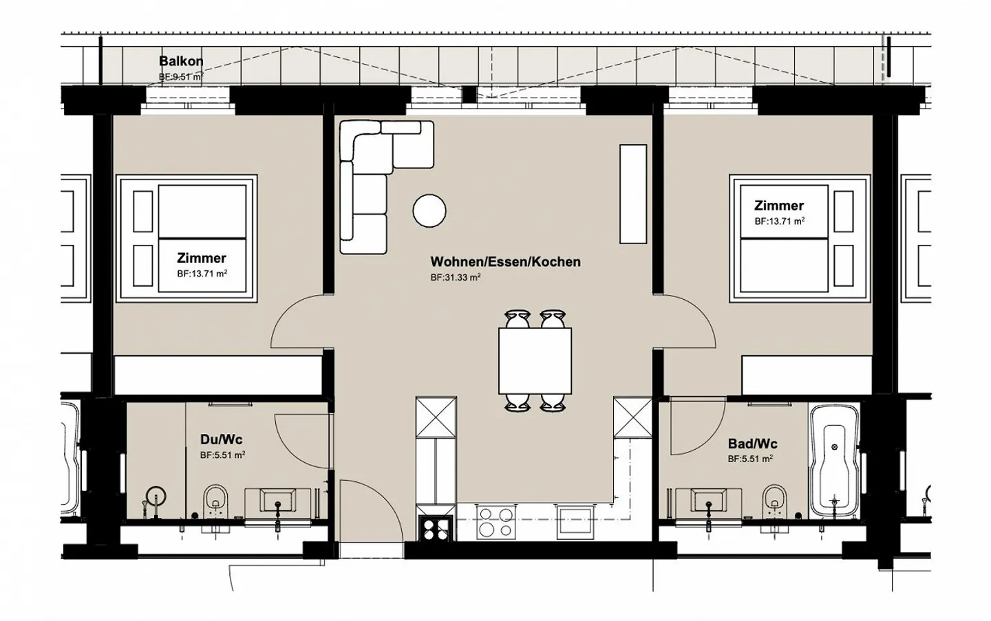
Appartement neuf de 3,5 pièces

Cet appartement moderne de 3,5 pièces dans le nouveau quartier Churavita Kleinbruggen impressionne par son agencement réfléchi et ses équipements de haute qualité. Avec environ 80 m² de surface habitable, il offre un foyer confortable pour les couples ou les petites familles qui apprécient un mode de vie moderne et durable.

Points forts :

- Espace de vie/salle à manger spacieux avec cuisine ouverte

- Deux chambres lumineuses

- Deux salles de bains modernes – une avec douche/WC, une avec baignoire/WC

Détails du bien

Disponible à partir de
Sur accord
Pièces
3.5
Année de construction
2025
Surface habitable
79
Étage
2ème

Caractéristiques

Garage
Balcon
Parking
Vue dégagée
Ascenseur
Cave
l'Internet

Agence

En ligne depuis
17/10/2025
il y a 13 heures

Localisation

Rheinfelsstrasse 72, 7000 Chur

Sources