Appartement à louer - Rheinfelsstrasse 72, 7000 Chur
Pourquoi vous aimerez ce bien
Espaces de vie lumineux
Appareils de cuisine haut de gamme
Balcon/terrasse privé
Organiser une visite
Réserver une visite aujourd'hui !
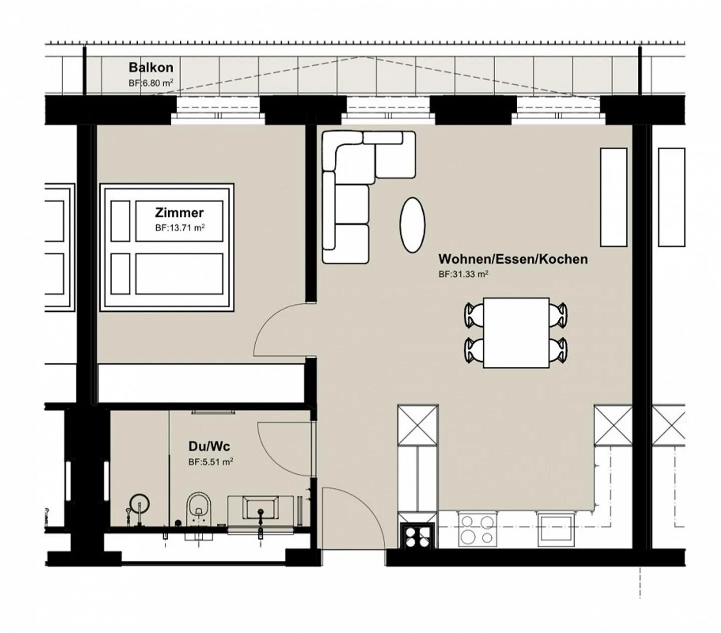
Appartement 2½ pièces avec cave
Je loue à partir du 1er janvier 2026 un appartement de haute qualité et moderne dans le projet populaire Churavita à Chur. Le complexe résidentiel se distingue par son emplacement central et calme, son architecture de qualité et sa proximité directe avec les commerces, les transports publics et les zones de loisirs.
L'appartement offre un concept de vie lumineux et ouvert avec de grandes baies vitrées, des matériaux de haute qualité et un agencement confortable. Idéal pour les célibataires, les c...
Détail des loyers
- Loyer net
- CHF 1’850
- Coûts supplémentaires
- CHF 150
- Total des loyers
- CHF 1’850
Détails du bien
- Disponible à partir de
- Sur accord
- Pièces
- 2.5
- Année de construction
- 2025
- Surface habitable
- 58 m²
- Étage
- 3ème
- Étages du bâtiment
- 3



