Appartement à louer - Rathausenstrasse 7, 6032 Emmen
Organiser une visite
Réserver une visite avec Frau aujourd'hui !
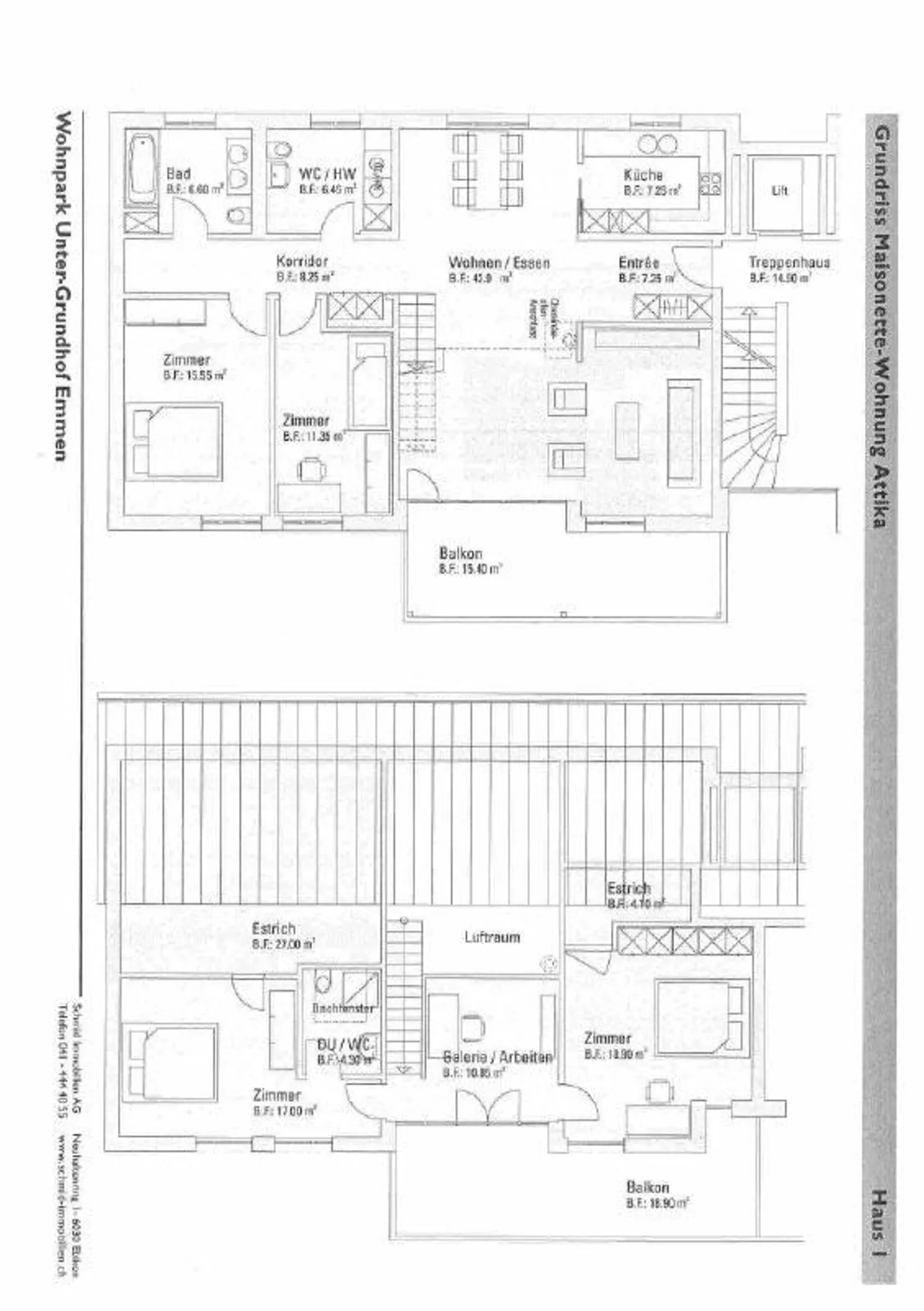
Wohnen über zwei Ebenen modern & gemütlich
Lage:
Die Rathausenstrasse in Emmen liegt verkehrstechnisch optimal und ist schnell mit den öffentlichen und auch privaten Verkehrsmitteln zu erreichen.
Objekt:
Die grosszügige Maisonette-Wohnung ist im Wohn- und Essbereich sowie in den Schlafzimmern mit Parkettböden ausgestattet. Das Schlafzimmer verfügt über integrierte Schränke sowie auch das Büro im Obergeschoss bietet mit seinem angrenzenden Estrich viel Stauraum. Die 3 Bäder sind modern gestaltet und Ihnen stehen im Bad zusätzlich eine Wasc...
Détail des loyers
- Loyer net
- CHF 2’790
- Coûts supplémentaires
- CHF 370
- Total des loyers
- CHF 2’790
Détails du bien
- Disponible à partir de
- Sur accord
- Pièces
- 5.5
- Année de construction
- 2003
- Surface habitable
- 171 m²
- Étage
- 3ème



