Appartement à louer - 6983 Magliaso
Pourquoi vous aimerez ce bien
Terrasse spacieuse pour se détendre
Cuisine ouverte avec appareils modernes
Excellente isolation phonique
Organiser une visite
Réserver une visite avec Stabile aujourd'hui !
Appartement spacieux et moderne de 2,5 pièces avec terrasse à Magliaso
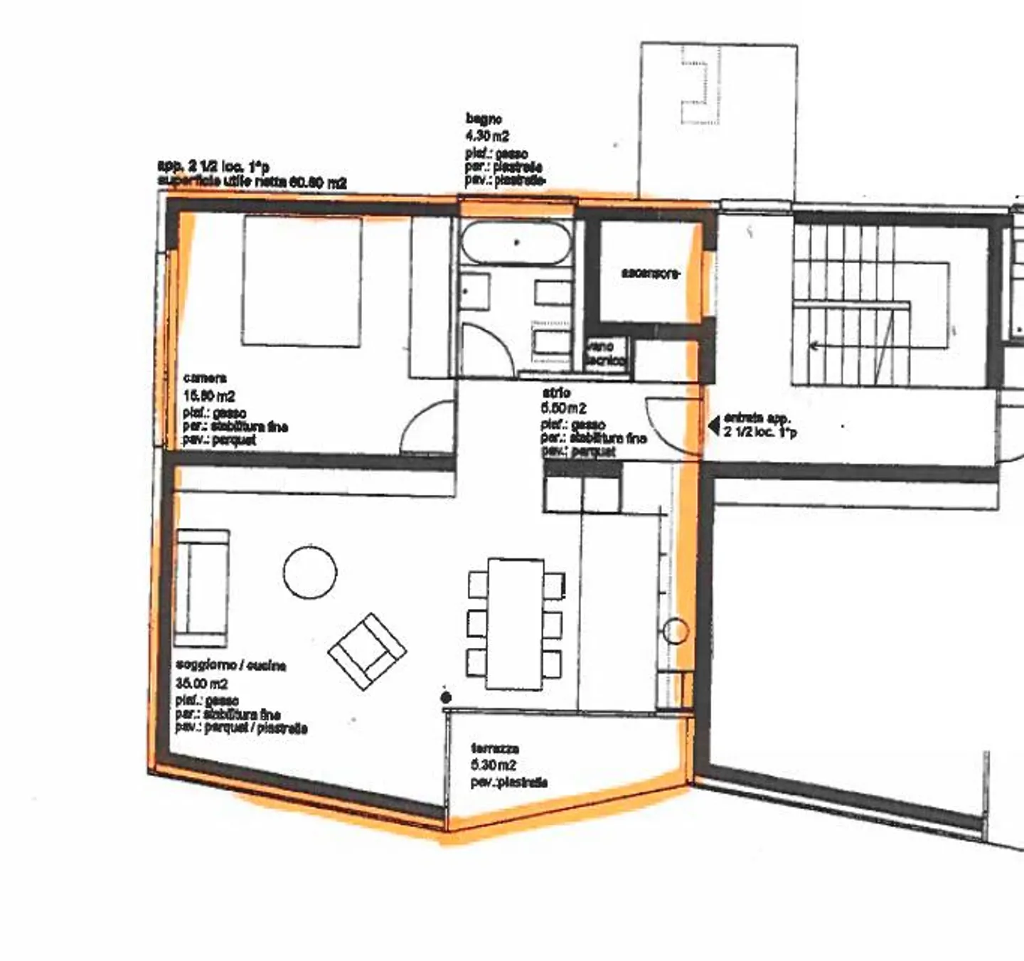
Appartement spacieux de 2,5 pièces d'environ 65 m², avec une terrasse, au premier étage d'un bâtiment de 3 étages et seulement 6 unités, dans la commune de Magliaso.
- DISPONIBLE À PARTIR DU 1ER MARS 2026 -
La propriété est répartie comme suit :
Hall d'entrée avec placards intégrés dans le salon, composé d'une cuisine ouverte et très grande avec cuisinière, lave-vaisselle, four et réfrigérateur, et d'un salon lumineux avec accès à la terrasse.
La zone de couchage se compose d'une chambre double d...
Détail des loyers
- Loyer net
- CHF 1’400
- Coûts supplémentaires
- CHF 250
- Total des loyers
- CHF 1’400
Détails du bien
- Disponible à partir de
- 01.03.2026
- Pièces
- 2.5
- Année de construction
- 2007
- Surface habitable
- 60 m²
- Surface utilisable
- 65 m²
- Étage
- 1er



