Appartement à louer - Bleichenbergstrasse 68, 4562 Biberist
Pourquoi vous aimerez ce bien
Balcon ensoleillé
Cuisine avec lave-vaisselle
Cave, grenier et local à vélos
Organiser une visite
Réserver une visite avec Ramona aujourd'hui !
Mfh bleichenbergstrasse 68, biberist
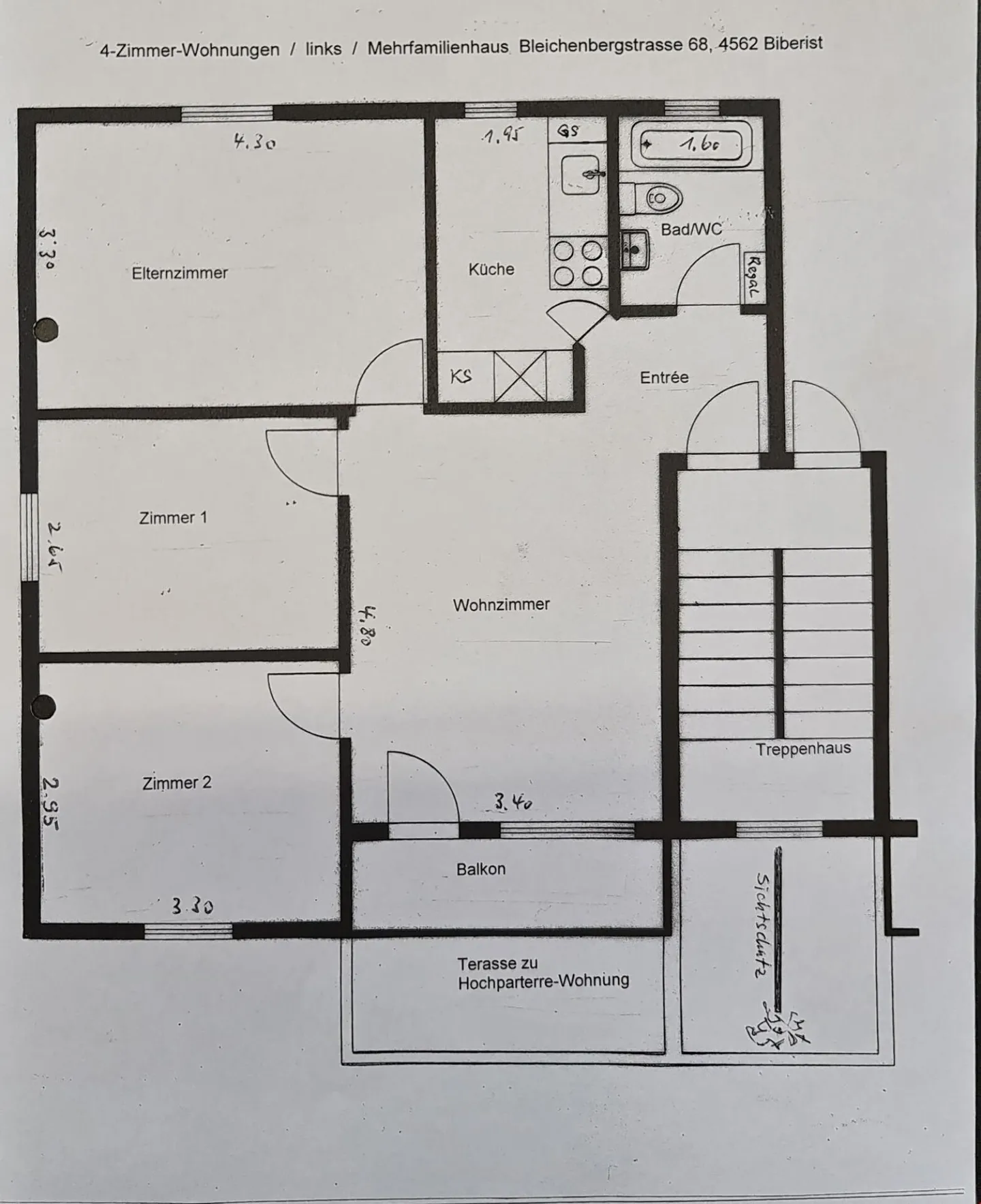
Dans une maison multifamiliale rénovée, Bleichenbergstrasse 68, située en hauteur, ensoleillée et offrant une vue panoramique, appartement de 4 pièces plus petit et confortable avec balcon. Toutes les pièces avec parquet stratifié, cuisine avec lave-vaisselle. Avec cave, grenier et local à vélos. Buanderie et séchoir avec lave-linge et sèche-linge. Garage CHF 100.-- ou place de parking CHF 50.-- peuvent être loués en supplément.
Détail des loyers
- Loyer net
- CHF 1’435
- Coûts supplémentaires
- CHF 215
- Total des loyers
- CHF 1’435
Détails du bien
- Disponible à partir de
- 01.06.2025
- Pièces
- 4
- Surface habitable
- 69 m²
- Étage
- Rez
- Étages du bâtiment
- 3



