Appartement à louer - Langegasse 60, 4104 Oberwil BL
Pourquoi vous aimerez ce bien
Grand balcon couvert
Cuisine équipée
Emplacement central et calme
Organiser une visite
Réserver une visite aujourd'hui !
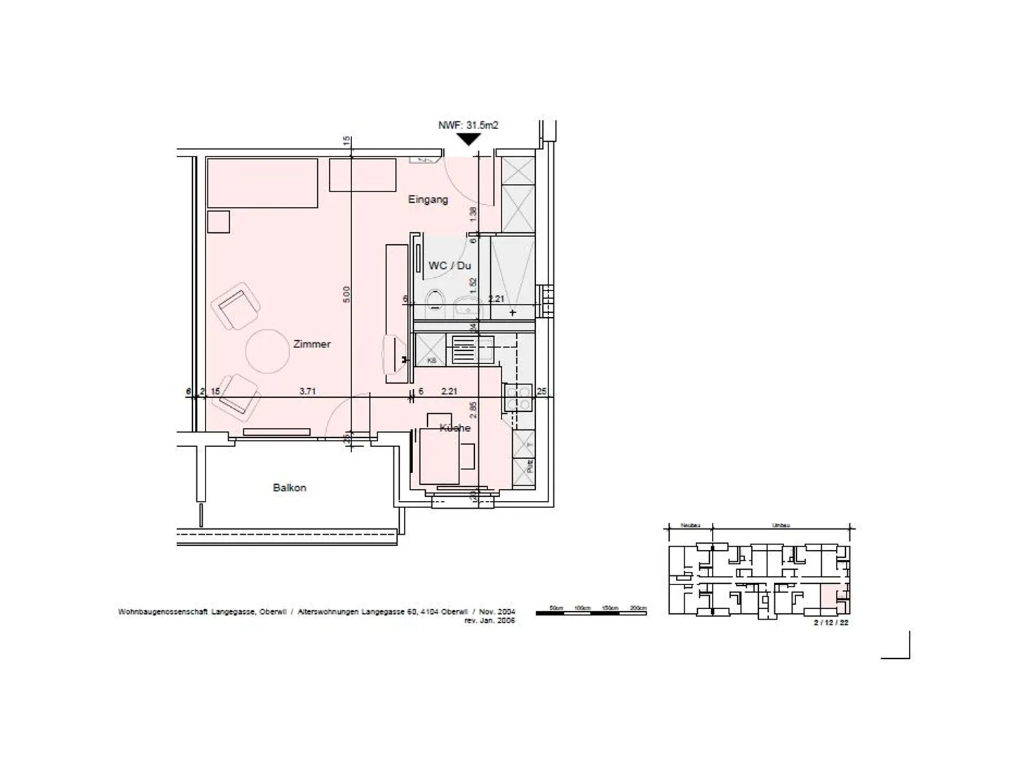
Appartement de retraite au centre d'Oberwil
Dans un emplacement idéal, la coopérative de logement Langegasse Oberwil loue ce petit mais agréable appartement d'une pièce. L'appartement est exclusivement à louer aux personnes d'âge avancé et est équipé en conséquence. Il est situé dans un endroit calme, mais central. Quelques détails sur l'appartement : * grand balcon couvert * cuisine équipée * salle de bain avec douche et WC * ascenseur * compartiment de cave privé * buanderie et séchoir centraux Des places de parking seraient également à...
Détail des loyers
- Loyer net
- CHF 800
- Coûts supplémentaires
- CHF 150
- Total des loyers
- CHF 800
Détails du bien
- Disponible à partir de
- Sur accord
- Pièces
- 1
- Année de construction
- 1973
- Surface habitable
- 31 m²
- Étage
- 1er



