1 / 10

Appartement à louer - Allée Des Cèdres 6, 1022 Chavannes-près-Renens

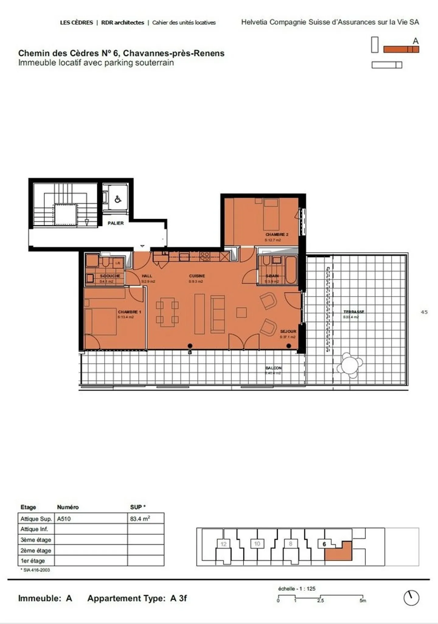
3.5 rooms • 83 m² • 5ème étage
CHF 2’628.-
CHF 380 m² / year

Pourquoi vous aimerez ce bien

Répartition intelligente de l'espace

Colonne de lavage privée

Belle vue depuis la terrasse

Organiser une visite

Réserver une visite aujourd'hui !

Helvetia Compagnie Suisse d'Assurances sur la Vie SA

Cherchez-vous un logement où il fait bon vivre avec parking ?

Une ville dans la ville, vous apprécierez la proximité au M1 ainsi que les divers commerces et services. Vous habitez ici dans un quartier offrant un accès rapide à pied aux diverses commodités.

Grâce à la répartition intelligente de l'espace d'env. 83m2, le logement en attique saura vous séduire. L'appartement est facilement aménageable et possède une terrasse. Ce logement présente en outre les aménagements suivants:

- Séjour avec parquet

- Cuisine agencée et ouverte sur séjour

- 2 chambres à...

Détails du bien

Disponible à partir de
01.11.2025
Pièces
3.5
Année de construction
2019
Surface habitable
83
Surface utilisable
83
Étage
5ème

Agence

Helvetia Compagnie Suisse d'Assurances sur la Vie SA
Adresse:Avenue des Figuiers 43, 1007 Lausanne
Ref: 2114_06_0552

Localisation

Allée Des Cèdres 6, 1022 Chavannes-près-Renens

Sources