Appartement à louer - Chemin Falconnier 59, 1260 Nyon
Pourquoi vous aimerez ce bien
Quartier calme et familial
Cuisine entièrement équipée
Proche des commerces et transports
Organiser une visite
Réserver une visite avec Céline aujourd'hui !
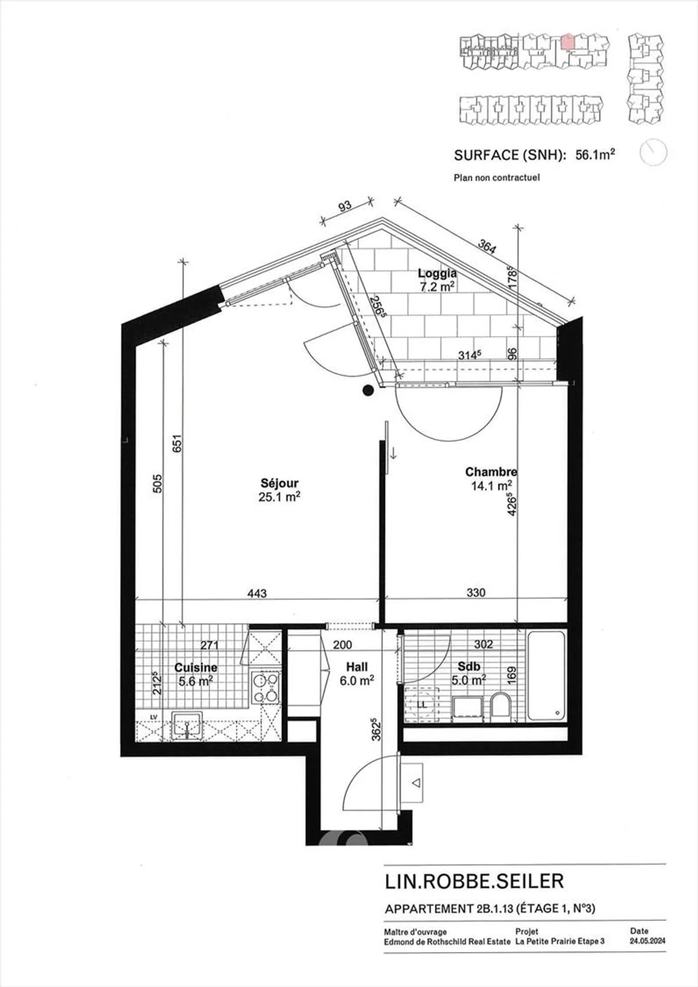
Appartement deux pièces au 1er étage avec balcon
Idéalement situé dans un environnement calme et familial, à proximité de tous les commerces, restaurants et autoroutes, et à seulement quelques minutes du centre de Nyon et de la gare.
L'appartement deux pièces d'environ 56 m² se présente comme suit :
Hall d'entrée avec placards, belle cuisine entièrement équipée ouvrant sur le salon-salle à manger, accès au balcon-loggia, 1 chambre et 1 salle de bain-WC + raccordement pour la buanderie.
Buanderie commune.
1 cave
En plus : 1 place de parking int...
Détail des loyers
- Loyer net
- CHF 1'740
- Coûts supplémentaires
- CHF 100
- Total des loyers
- CHF 1'740
Détails du bien
- Disponible à partir de
- Sur accord
- Pièces
- 2
- Surface habitable
- 56 m²
- Étage
- 1er



