Appartement à louer - Prättigauerstrasse 52b, 7265 Davos Wolfgang
Pourquoi vous aimerez ce bien
Architecture ouverte lumineuse
Loggia pour vivre dehors
Cuisine moderne avec rangement
Organiser une visite
Réserver une visite aujourd'hui !
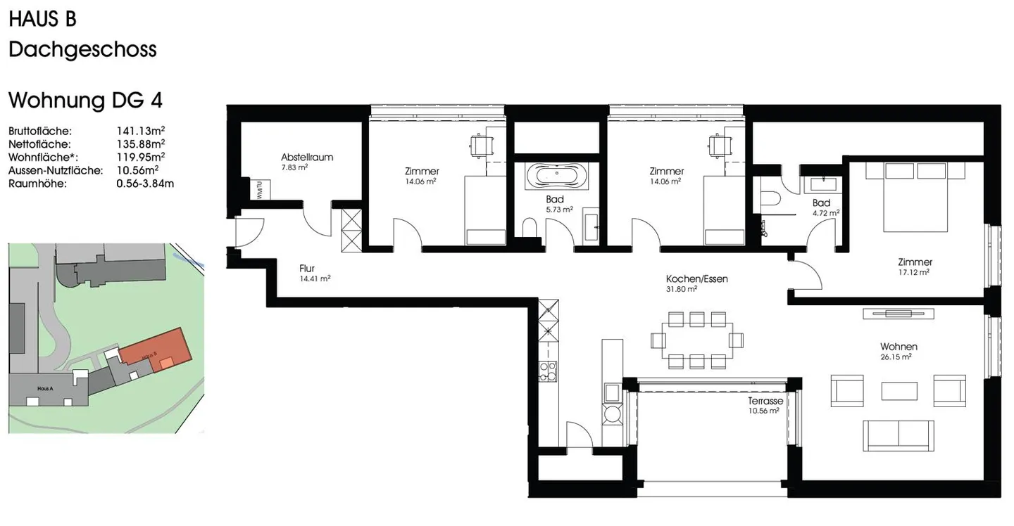
Appartement penthouse exclusif de 4 1/2 pièces
L'appartement sera loué à partir du 1er novembre 2025 ou selon accord.
Loyer net : CHF 2'740
Charges : CHF 200
Loyer brut : CHF 2'940
Cet appartement penthouse attrayant ne peut être utilisé que comme résidence principale en location à long terme. Un carport et/ou une place de garage peuvent être loués en supplément.
Dans l'idyllique Laret, deux bâtiments résidentiels modernes avec un total de 12 appartements locatifs ont été construits en 2022. La propriété est développée de manière central...
Détail des loyers
- Loyer net
- CHF 2’940
- Coûts supplémentaires
- CHF 200
- Total des loyers
- CHF 2’940
Détails du bien
- Disponible à partir de
- Sur accord
- Pièces
- 4.5
- Année de construction
- 2022
- Surface habitable
- 141 m²



