Appartement à louer - Weiligstrasse 52, 7310 Bad Ragaz
Pourquoi vous aimerez ce bien
Appareils de cuisine haut de gamme
Structure en bois écologique
Chambres prêtes pour multimédia
Organiser une visite
Réserver une visite avec Brechbühl aujourd'hui !
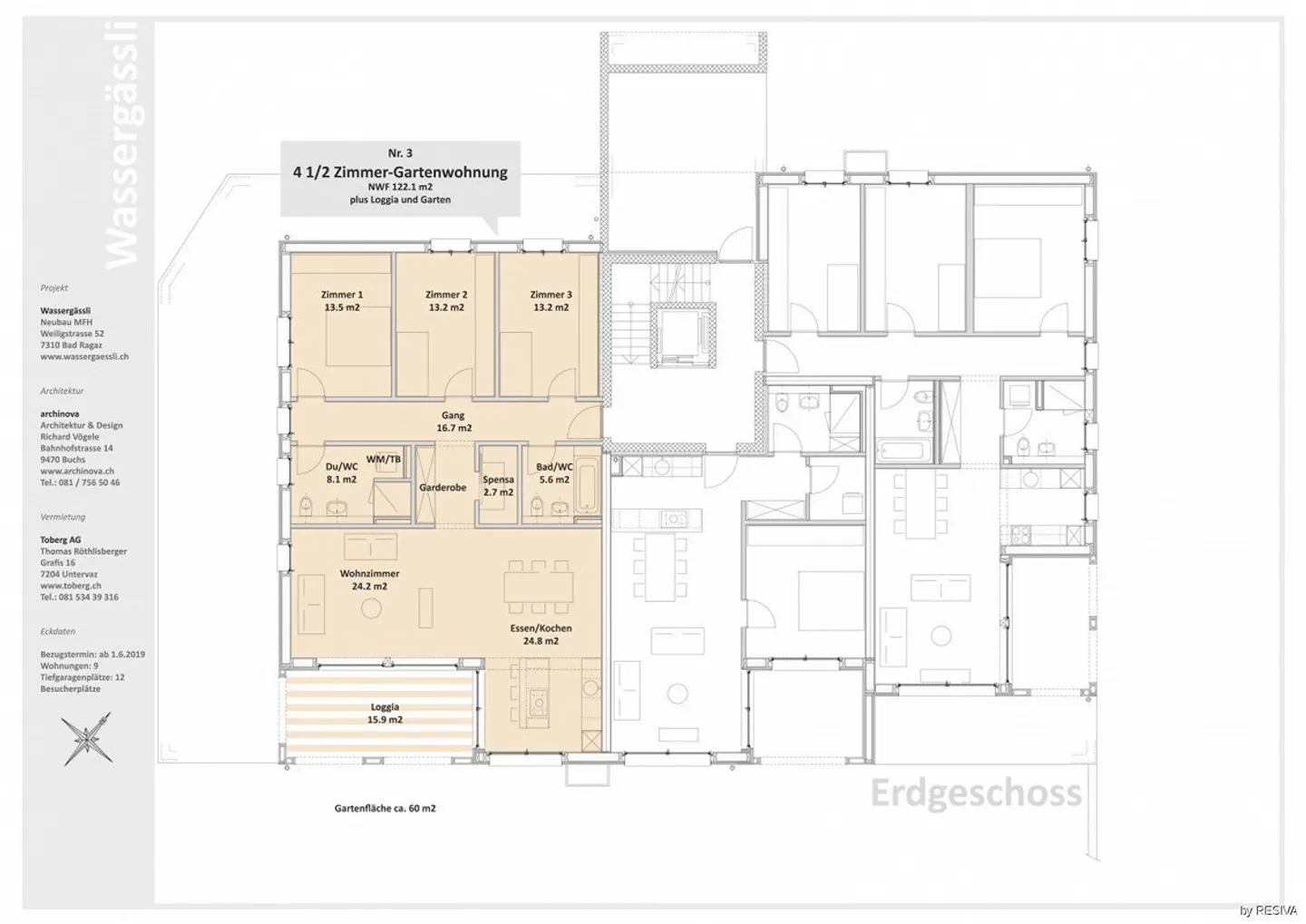
Appartement 4,5 pièces dans le quartier prisé de Weilig à Bad Ragaz
À louer à partir du 1er juillet 2026 ou sur accord.
- Belle maison en bois moderne et neutre en CO2
- Revêtements de sol dans le salon et les chambres en parquet en bois dur huilé
- Salles de bain avec dalles en pierre fine
- Murs plâtrés en blanc et dalles en pierre fine dans les douches
- Le dosseret de la cuisine est recouvert de verre
- Plafonds en épicéa (avec protection UV)
- Fenêtres en bois/métal avec triple vitrage isolant, bois en épicéa huilé
- Cuisine de haute qualité avec plan de travail en...
Détails du bien
- Disponible à partir de
- Sur accord
- Pièces
- 4.5
- Année de construction
- 2019
- Surface habitable
- 122 m²



