Appartement à louer - Talgartenstrasse 52, 8630 Rüti ZH
Pourquoi vous aimerez ce bien
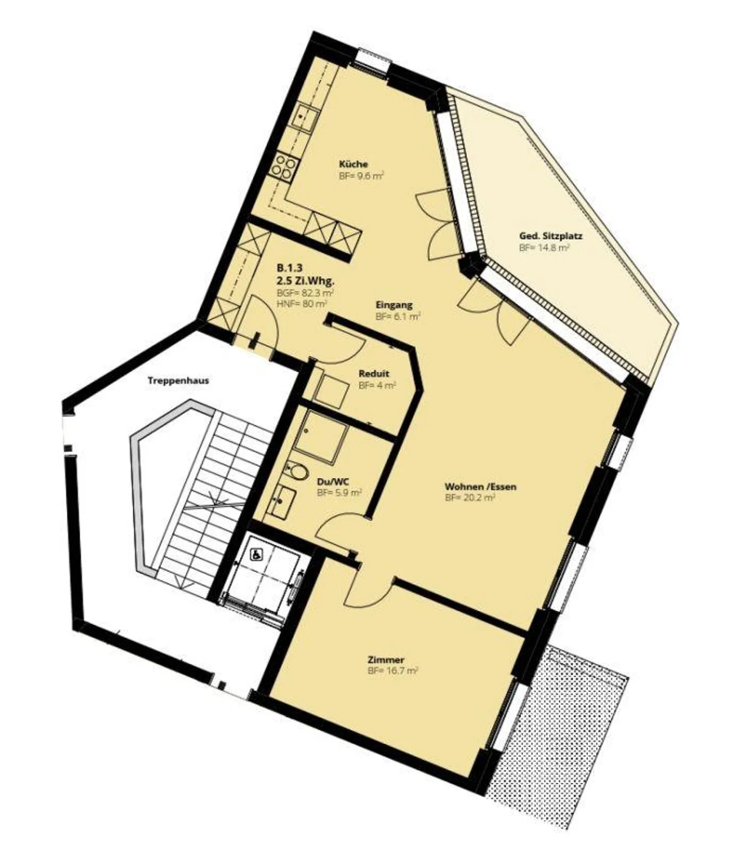
Balcon spacieux de 14,8 m²
Parquet en chêne de haute qualité
Cuisine en granit avec V-Zug
Organiser une visite
Réserver une visite avec Burkhard aujourd'hui !
Le Rütiwald à votre porte!
Les passionnés de sport ou ceux en quête de tranquillité, cet appartement de 2,5 pièces avec 82 m² de surface habitable et un balcon couvert de 14,8 m² offre une expérience de vie parfaite tant pour les célibataires que pour les couples.
Cet appartement est situé dans une nouvelle propriété avec beaucoup de verdure, d'espace et de tranquillité pour vivre. Juste devant votre porte commence le Rütiwald avec ses zones de protection de la nature idylliques, vous invitant à de nombreuses activités.
Vot...
Détail des loyers
- Loyer net
- CHF 1’920
- Coûts supplémentaires
- CHF 140
- Total des loyers
- CHF 1’920
Détails du bien
- Disponible à partir de
- Sur accord
- Pièces
- 2.5
- Année de construction
- 2020
- Surface habitable
- 82 m²
- Étage
- 1er




