Appartement à louer - Reussinsel 52, 6003 Luzern
Pourquoi vous aimerez ce bien
Espace de vie lumineux
Balcon avec vue sur la rivière
Cuisine moderne équipée
Organiser une visite
Réserver une visite aujourd'hui !
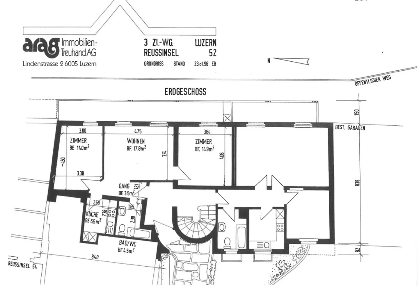
Appartement 3.5 pièces
Vivre confortablement sur l'île de la Reuss !
Nous louons cet appartement confortable de 3.5 pièces sur l'île de la Reuss à Lucerne à partir du 01.03.2026 ou par arrangement.
Les points forts suivants sont offerts par cet appartement ouvert :
- Parquet dans le salon et la chambre
- Grandes fenêtres lumineuses pour beaucoup de lumière du jour
- Douche/WC avec sol carrelé
- Cuisine / cuisinière en céramique
- Balcon avec belle vue sur la Reuss
"Veuillez noter que les images de l'appartement peuvent être...
Détail des loyers
- Loyer net
- CHF 1’880
- Coûts supplémentaires
- CHF 150
- Total des loyers
- CHF 1’880
Détails du bien
- Disponible à partir de
- Sur accord
- Pièces
- 3.5
- Surface habitable
- 59 m²



