Appartement à louer - Route De Clouchèvre 51, 1934 Le Châble VS
Pourquoi vous aimerez ce bien
Espace de vie lumineux
Cuisine ouverte
Terrasse privée incluse
Organiser une visite
Réserver une visite aujourd'hui !
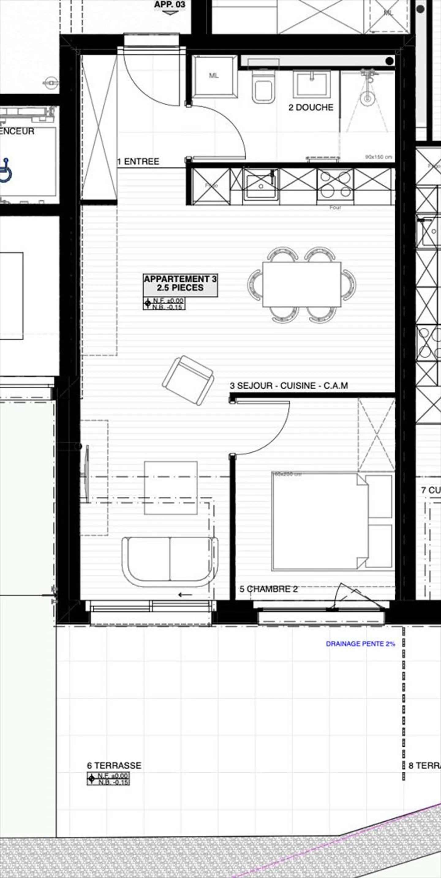
Appartement 2.5 pièces
Appartement neuf - charges comprise
Ce nouvel immeuble à quelques pas des télécabines du Châble, dispose encore de quelques appartements disponible pour une location annuelle:
Ce 2.5 pièces au rez-de-chaussée offre des finitions de qualités et se présente de la manière suivante :
* un espace de vie lumineux
* Cuisine ouverte
* Chambre double
* Salle de douche
* Terrasse
* Cave
* Place de parc
Uniquement pour résidence principale
*Décembre 2025
Détail des loyers
- Loyer net
- CHF 1’680
- Coûts supplémentaires
- CHF 130
- Total des loyers
- CHF 1’680
Détails du bien
- Disponible à partir de
- Sur accord
- Pièces
- 2.5
- Salles de bain
- 1
- Surface habitable
- 43 m²




