Attique à louer - Dienerstrasse 50, 8004 Zürich
Pourquoi vous aimerez ce bien
Nouveau bâtiment, première occupation
Balcon ensoleillé avec vue
Lave-linge dans l'appartement
Organiser une visite
Réserver une visite avec R. aujourd'hui !
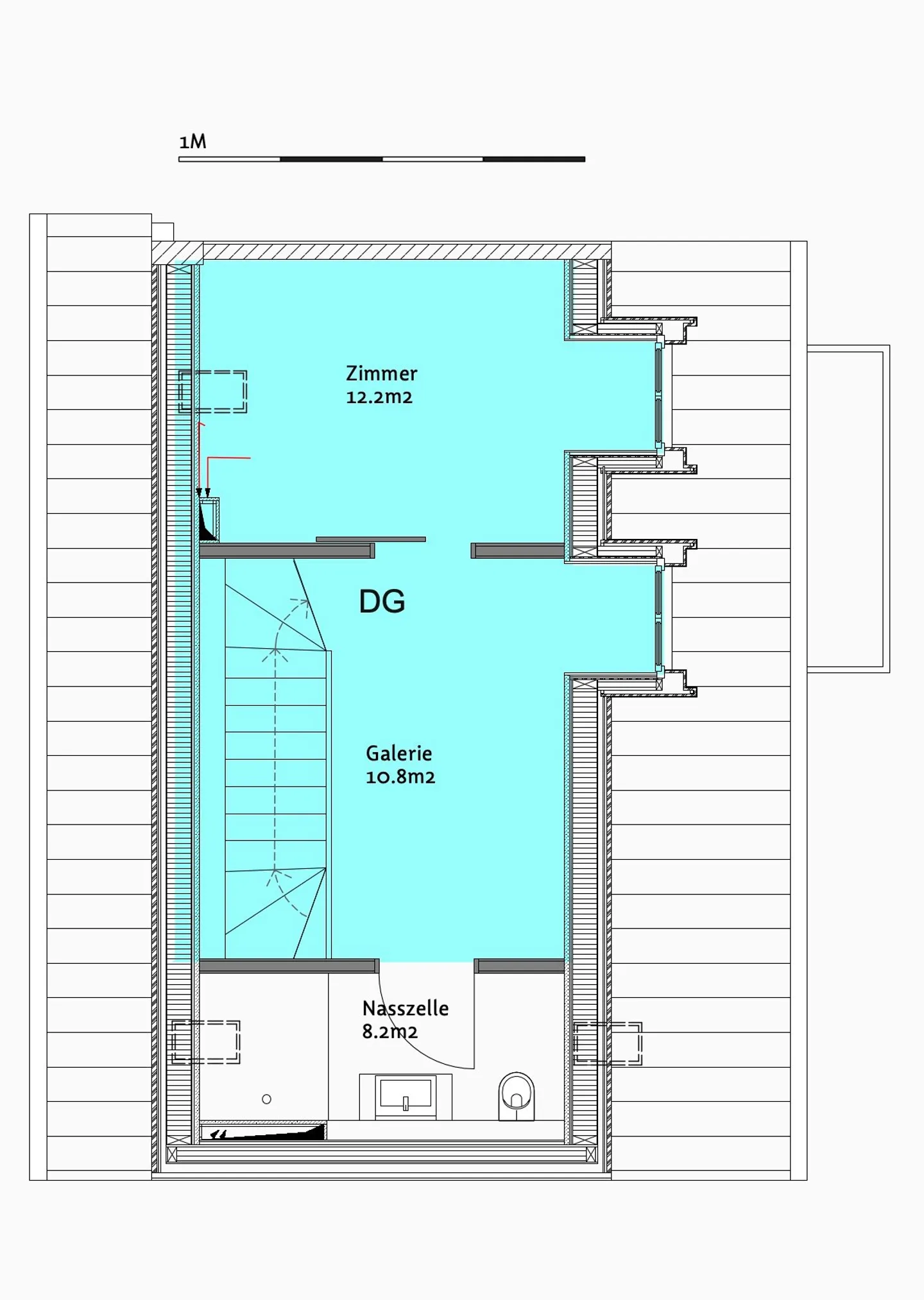
Appartement moderne 3,5 pièces avec balcon à Zurich
_Au cœur de tout ..._
Découvrez cet attrayant appartement en duplex de 3,5 pièces dans un nouveau bâtiment situé au Dienerstrasse 50, dans le quartier animé d'Aussersihl à Zurich (8004). Cet appartement ensoleillé et calme offre le refuge parfait au cœur de la ville.
Points forts de l'appartement :
* Nouveau bâtiment : Première occupation dans un bâtiment achevé en 2025
* Balcon : Profitez de la vue sur l'Uetliberg
* Lave-linge : Propre installation de lavage dans l'appartement
* Chambres lumineuses :...
Détails du bien
- Disponible à partir de
- 16.01.2025
- Pièces
- 3.5
- Année de construction
- 2025
- Année de rénovation
- 2025



