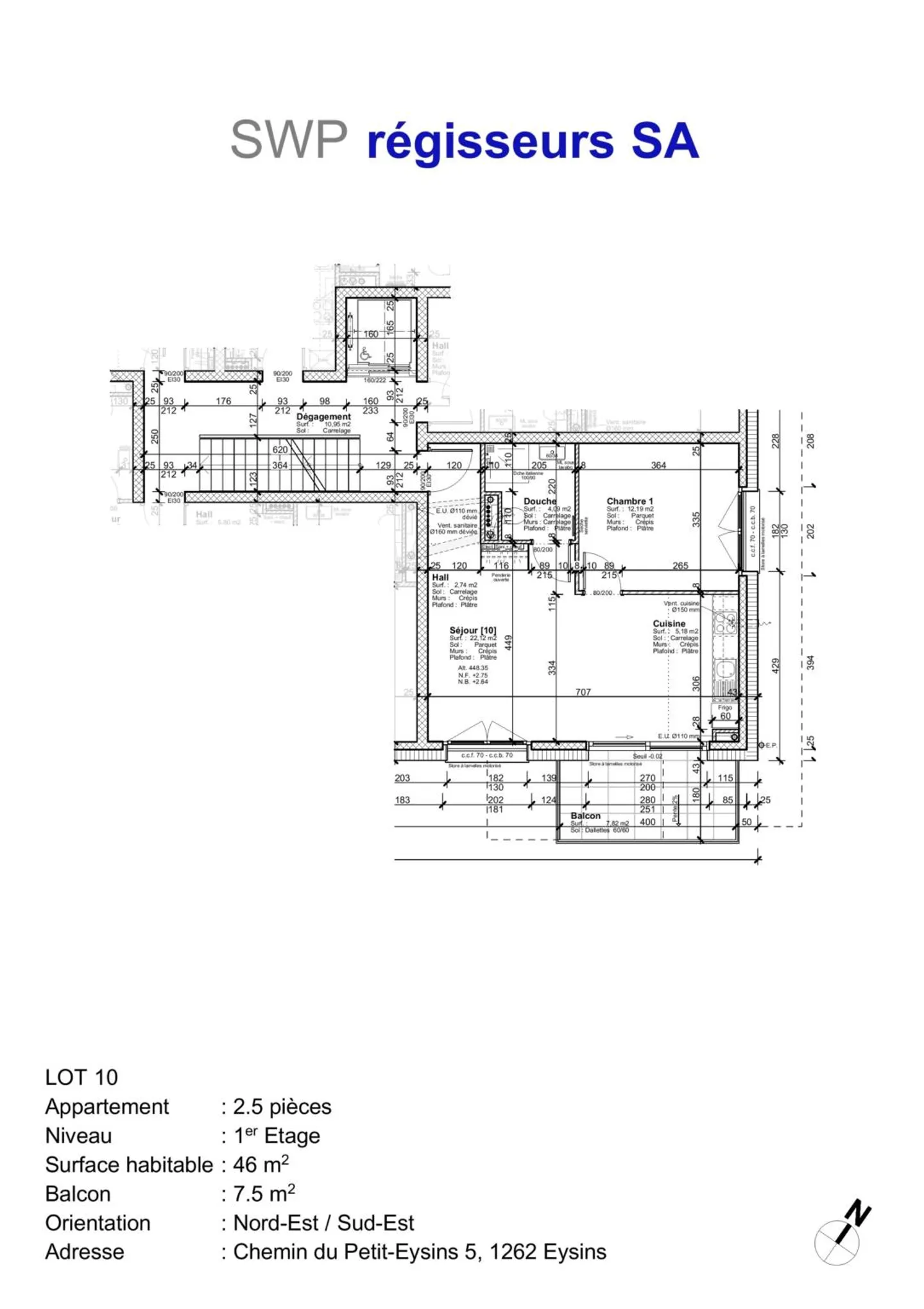
Appartement à louer - Route Du Petit Eysins 5, 1262 Eysins
Organiser une visite
Réserver une visite avec SWP aujourd'hui !
Agréable appartement neuf, de 2½ pièces + balcon, à 6 minutes du centre de Nyon et à 1 minute de l'autoroute.
Construit de plain-pied, il est ainsi conçu:
- Hall d'entrée avec penderie ouverte
- Une cuisine ouverte, équipée et agencée
- Un séjour disposant d'une baie-vitrée et une fenêtre.
- Une chambre à coucher
- Une salle de douche avec WC et lavabo.
A l'extérieure :
- Un balcon
- Une cave
- Une buanderie commune
- Un local vélo commun
Les Logements adaptés sont des structures dont l'architecture et l...
Détail des loyers
- Loyer net
- CHF 1’780
- Coûts supplémentaires
- CHF 120
- Total des loyers
- CHF 1’780
Détails du bien
- Disponible à partir de
- Sur accord
- Pièces
- 2.5
- Salles de bain
- 1
- Année de construction
- 2021
- Surface habitable
- 46 m²
- Étage
- 1er


