Appartement à louer - Mayrstrasse 5, 9320 Arbon
Pourquoi vous aimerez ce bien
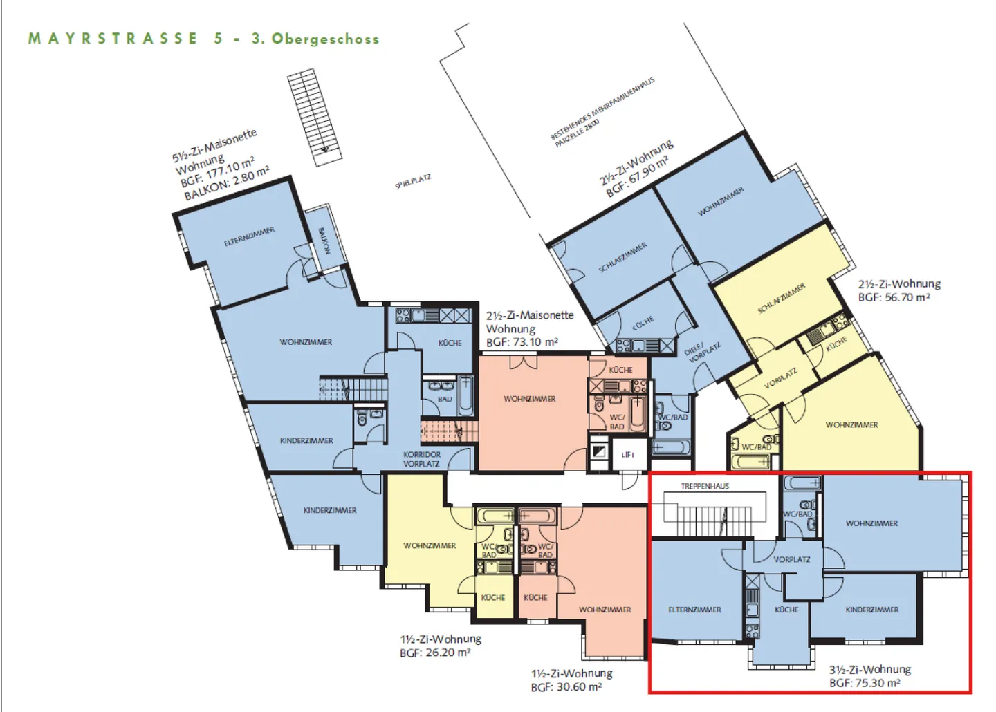
Agencement unique et spacieux
Cuisine moderne avec rangement
Ascenseur installé en 2023
Organiser une visite
Réserver une visite avec Bilgenur aujourd'hui !
L'appartement parfait pour vous!Ici, aucun souhait ne reste insatisfait.Un plan d'étage spécial dorlote les sens et les pièces spacieuses vous permettent de les meubler comme vous le souhaitez.Un interphone et un ouvre-porte électrique sont installés à côté de la porte d'entrée.La cuisine est équipée d'un réfrigérateur, d'un lave-vaisselle et de nombreux rangements, et il y a même un raccordement pour votre propre machine à laver.L'appartement a été fraîchement peint et convient également aux no...
Détail des loyers
- Loyer net
- CHF 1’390
- Coûts supplémentaires
- CHF 230
- Total des loyers
- CHF 1’390
Détails du bien
- Disponible à partir de
- Sur accord
- Pièces
- 3.5
- Salles de bain
- 1
- Étage
- 3ème



