Appartement à louer - Hofackerstrasse 5, 4625 Oberbuchsiten
Pourquoi vous aimerez ce bien
Espace de vie lumineux
Cuisine moderne en pierre
Coûts énergétiques bas
Organiser une visite
Réserver une visite aujourd'hui !
Vie proche de la nature à Oberbuchsiten
*PHOTOS D'UN APPARTEMENT COMPARABLE*
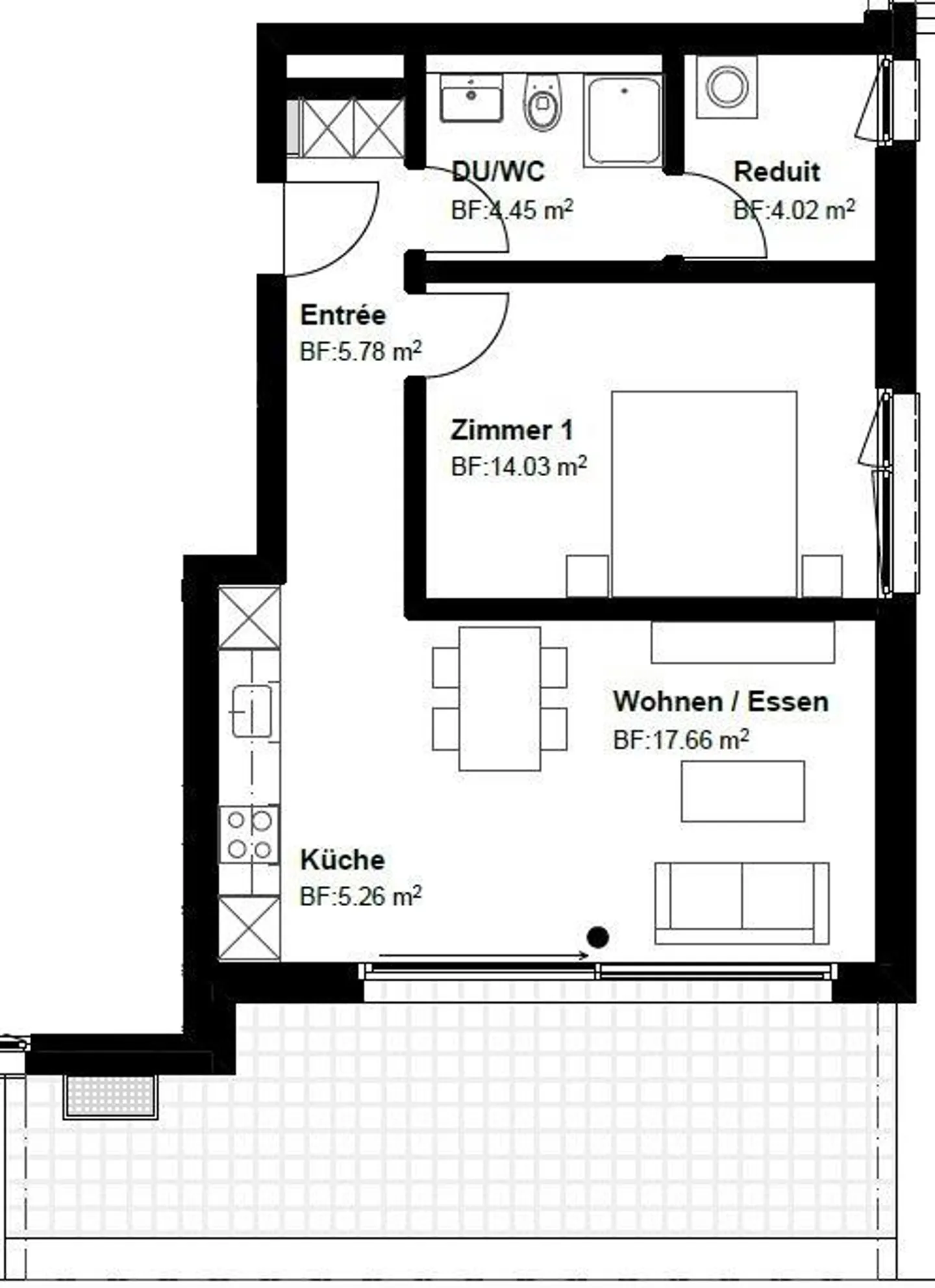
Cet bel appartement au rez-de-chaussée impressionne par les caractéristiques suivantes :
- pièces lumineuses
- Entrée avec garde-robe intégrée
- espace de vie et salle à manger ouvert
- cuisine moderne avec appareils de cuisine exclusifs (plan de travail en pierre naturelle)
- propre machine à laver et sèche-linge dans le réduit
- espace de détente
- revêtements de sol faciles à entretenir dans toutes les pièces
- Faibles coûts énergétiques grâce à une pompe à chaleur...
Détail des loyers
- Loyer net
- CHF 1’310
- Coûts supplémentaires
- CHF 200
- Total des loyers
- CHF 1’310
Détails du bien
- Disponible à partir de
- Sur accord
- Pièces
- 2.5
- Surface habitable
- 52 m²
- Étage
- Rez




