Appartement à louer - Hafenstrasse 5, 8280 Kreuzlingen
Pourquoi vous aimerez ce bien
Espace de vie en céramique
Cuisine moderne avec verre
Espace extérieur couvert
Organiser une visite
Réserver une visite avec Nic aujourd'hui !
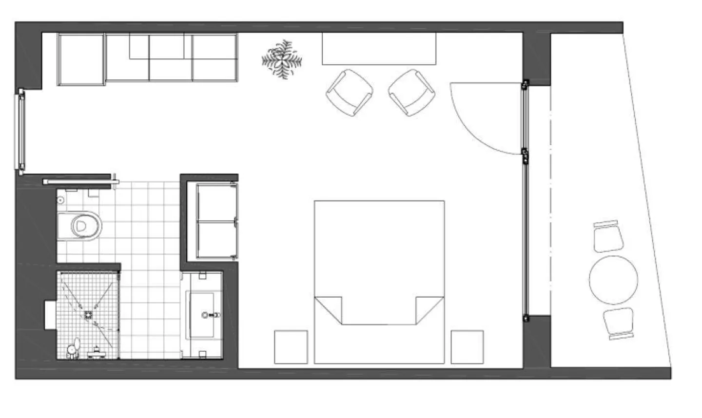
Appartement moderne 1,5 pièces à Kreuzlingen
"Top moderne et proche du lac - Ici votre recherche se termine !"
Nous louons votre nouvel appartement top moderne à partir du 01.03.2026 avec les avantages suivants :
- Salon, cuisine et couloir avec carrelage en céramique
- Cuisine moderne avec vitrocéramique
- Placards intégrés
- Salle de bain moderne avec WC et douche
- Espace de sièges - partiellement couvert
Si nous avons éveillé votre intérêt, nous nous réjouissons de votre visite !
Détail des loyers
- Loyer net
- CHF 920
- Coûts supplémentaires
- CHF 140
- Total des loyers
- CHF 920
Détails du bien
- Disponible à partir de
- Sur accord
- Pièces
- 1.5
- Surface habitable
- 26 m²
- Étage
- Rez



