Appartement à louer - Felsenacker 5, 4203 Grellingen
Pourquoi vous aimerez ce bien
Espace jardin spacieux
Balcon ensoleillé
Cuisine moderne équipée
Organiser une visite
Réserver une visite avec Sinah aujourd'hui !
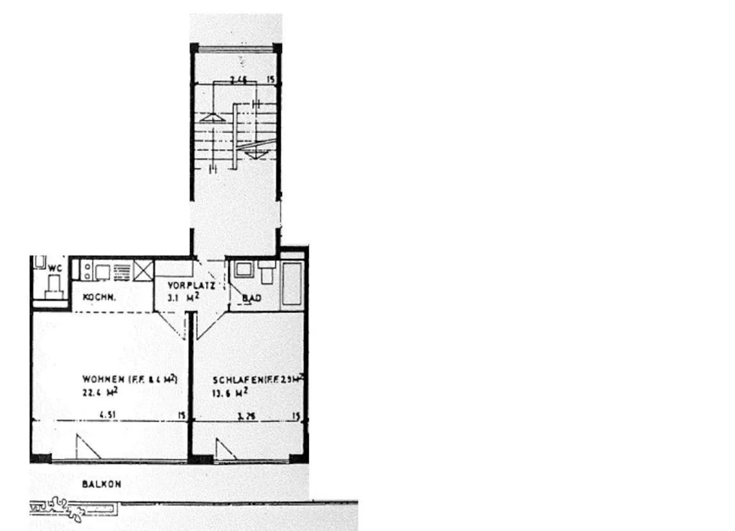
Appartement simple confortable à Grellingen
Cet appartement lumineux est situé dans un immeuble bien entretenu avec un vaste jardin. De la propriété, vous pouvez rejoindre divers commerces ainsi que la gare de Grellingen en quelques minutes à pied. La Birs à proximité invite également à de belles promenades.
Équipements :
- Parquet dans le salon et la chambre
- Carrelage dans la salle de bain et l'entrée
- Cuisine équipée avec plaque de cuisson en vitrocéramique
- Salle de bain avec WC
- Balcon ensoleillé
- Placard et cave pour plus d'espa...
Détail des loyers
- Loyer net
- CHF 1’015
- Coûts supplémentaires
- CHF 135
- Total des loyers
- CHF 1’015
Détails du bien
- Disponible à partir de
- Sur accord
- Pièces
- 2
- Surface habitable
- 45 m²
- Étage
- 1er



