Appartement à louer - Zelgstrasse 4b, 8280 Kreuzlingen
Pourquoi vous aimerez ce bien
Balcon ensoleillé avec vue
Environnement familial
Accès par ascenseur et parking disponible
Organiser une visite
Réserver une visite avec Nic aujourd'hui !
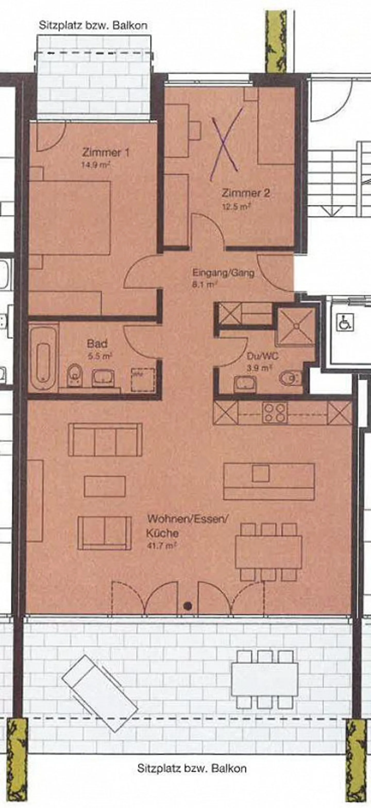
Appartement lumineux de 3,5 pièces avec balcon dans un emplacement calme à Kreuzlingen
Dans un emplacement agréable et bien desservi à Zelgstrasse 4b à Kreuzlingen, nous louons un appartement de 3,5 pièces bien entretenu au 2ème étage. L'appartement se distingue par une disposition pratique, un environnement de vie lumineux et un cadre familial.
Le salon et la salle à manger offrent une ambiance de vie ouverte et conviviale et disposent d'un accès direct au balcon, d'où vous pouvez profiter d'une belle vue. La salle de bain est équipée d'une douche, et un WC séparé est également di...
Détail des loyers
- Loyer net
- CHF 1’830
- Coûts supplémentaires
- CHF 180
- Total des loyers
- CHF 1’830
Détails du bien
- Disponible à partir de
- Sur accord
- Pièces
- 3.5
- Surface habitable
- 87 m²
- Étage
- 2ème



