Appartement à louer - Wydenstrasse 49, 8408 Winterthur
Pourquoi vous aimerez ce bien
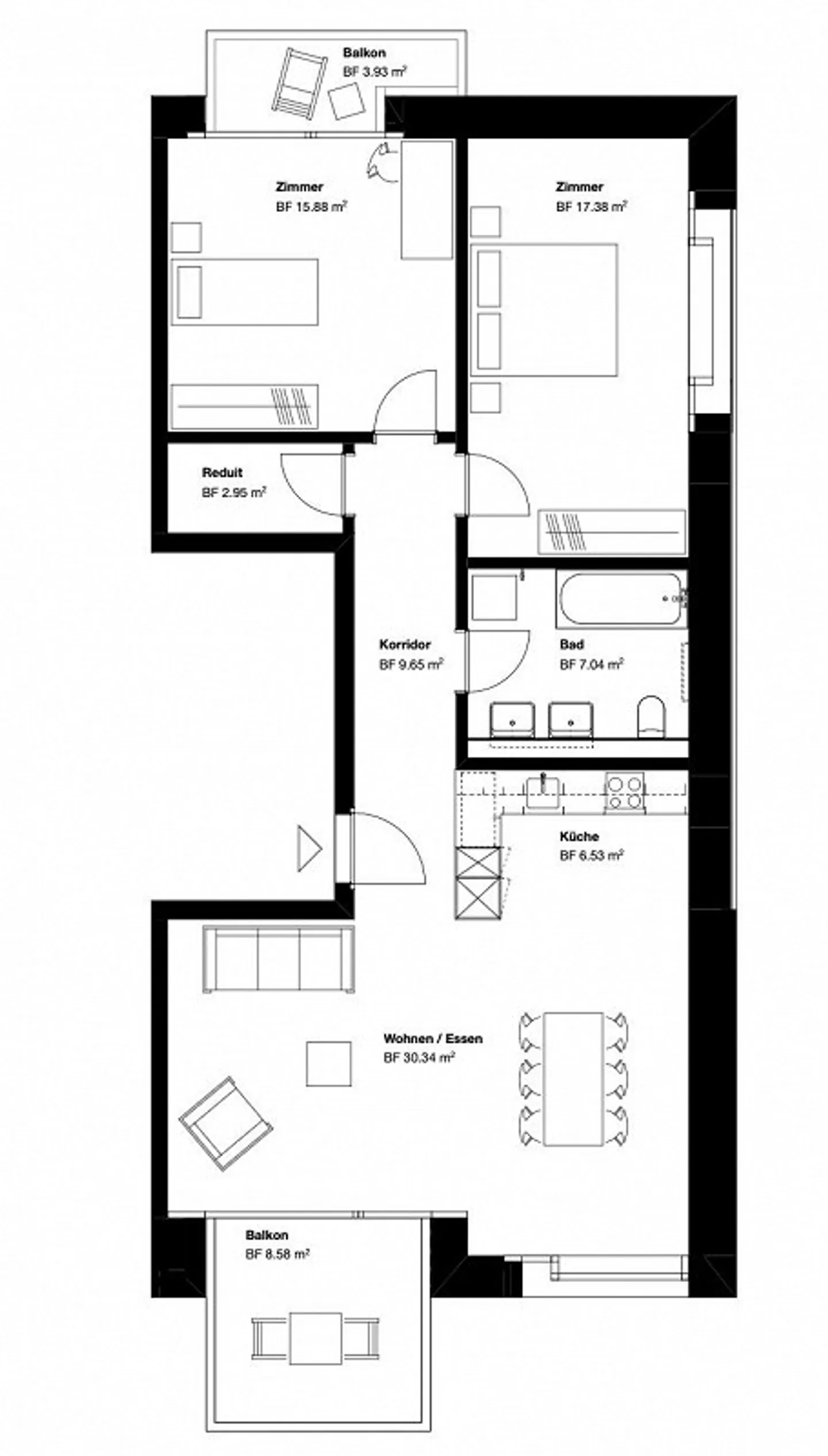
Deux balcons ensoleillés
Efficacité énergétique Minergie
Emplacement pratique près des transports
Organiser une visite
Réserver une visite aujourd'hui !
Appartement moderne et lumineux avec 2 balcons et place de parking
Nous recherchons un(e) nouveau(elle) locataire pour notre appartement à Winterthur Wülflingen à partir du 15.12.2025 (date flexible à partir du 15.12., mais de préférence encore en décembre). Coûts mensuels selon le contrat actuel, y compris les charges et le stationnement : CHF 2375. Le loyer est encore soumis au taux d'intérêt de référence de 1,75 % et une réduction de loyer peut être demandée en conséquence. Les charges comprennent l'électricité (CHF 50, système solaire sur le toit).
Apparteme...
Détail des loyers
- Loyer net
- CHF 2’205
- Coûts supplémentaires
- CHF 270
- Total des loyers
- CHF 2’205
Détails du bien
- Disponible à partir de
- 15.12.2025
- Pièces
- 3.5
- Surface habitable
- 89 m²
- Étage
- 4ème



