Attique à louer - Poststrasse 47, 8953 Dietikon
Pourquoi vous aimerez ce bien
Vue panoramique dégagée
Entrée spacieuse et lumineuse
Haute confidentialité dans quartier calme
Organiser une visite
Réserver une visite avec Tanja aujourd'hui !
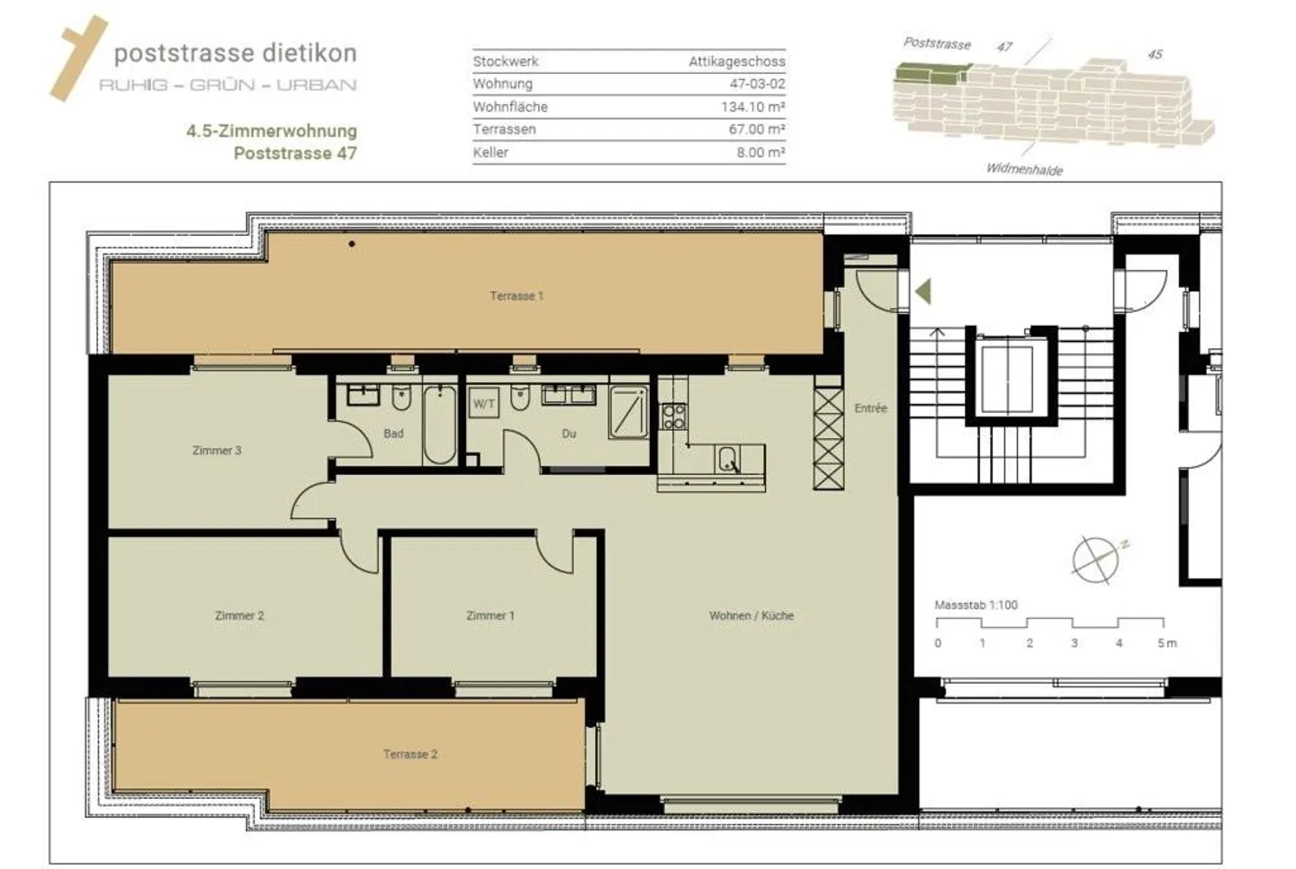
Appartement en attique avec vue
Dans un quartier calme, à distance de marche de la gare et des commerces, nous louons cet appartement en attique de 4,5 pièces d'une maison multifamiliale avec une vue dégagée. L'appartement sera disponible à partir de janvier 2025 ou sur rendez-vous.
Le bien se distingue par ses plans d'étage bien pensés et pratiques et les avantages suivants :
- Haute confidentialité
- Entrée spacieuse avec lumière du jour et placards intégrés pratiques
- 2 salles de bains, y compris une tour de lavage
Pour tous ce...
Détail des loyers
- Loyer net
- CHF 3’890
- Coûts supplémentaires
- CHF 340
- Total des loyers
- CHF 3’890
Détails du bien
- Disponible à partir de
- Sur accord
- Pièces
- 4.5
- Surface habitable
- 134 m²
- Étage
- 3ème



