Appartement à louer - Bahnhofstrasse 43, 4950 Huttwil
Pourquoi vous aimerez ce bien
Cuisine ouverte lumineuse
Espace balcon ensoleillé
Options de shopping sur place
Organiser une visite
Réserver une visite aujourd'hui !
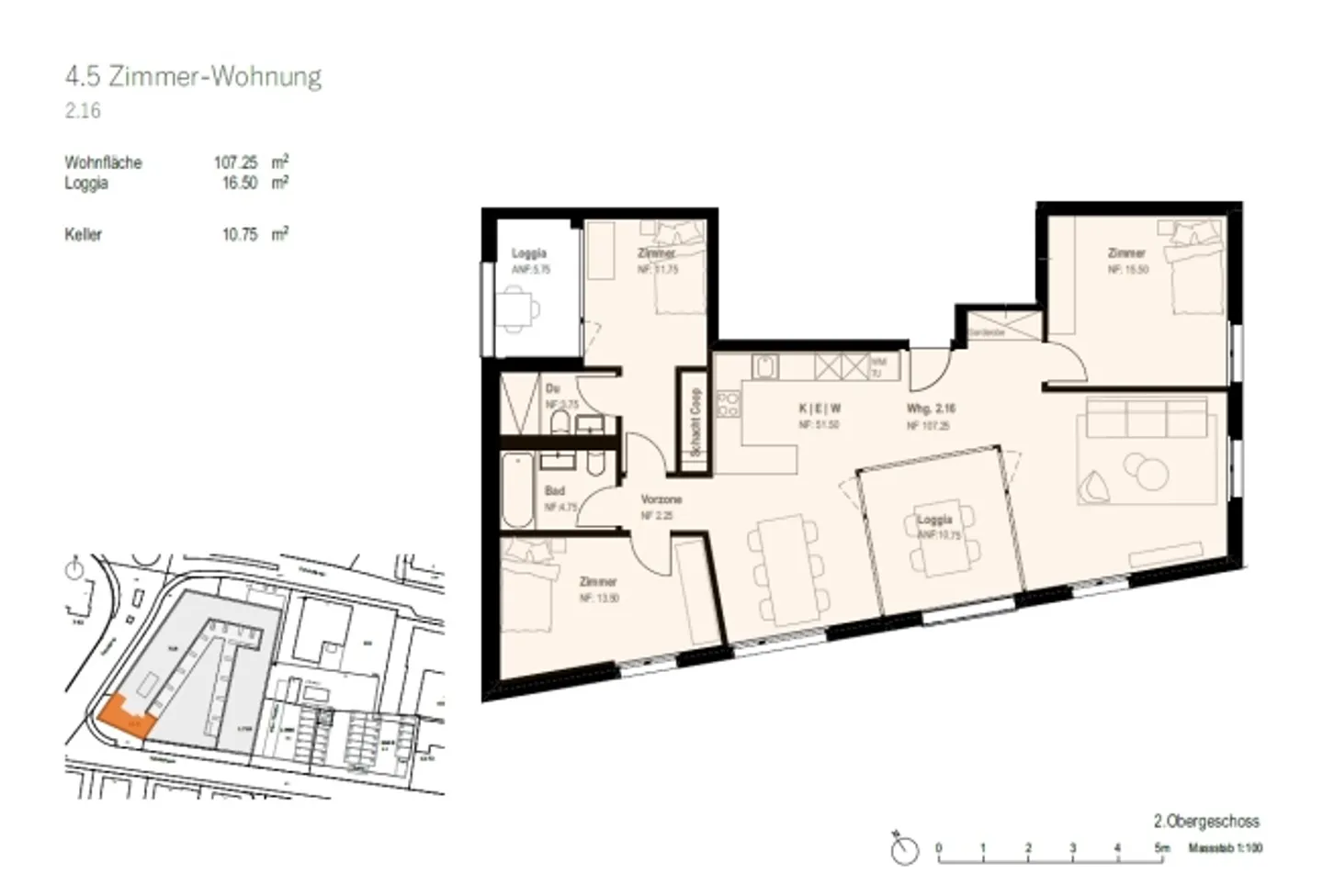
Appartement 4,5 pièces - première occupation près de la gare
Nous louons immédiatement ou selon accord un appartement attrayant et moderne de 4,5 pièces pour une première occupation juste à côté de la gare. Le Coop et une pharmacie se trouvent dans l'immeuble. Cuisine spacieuse, lumineuse et ouverte - plaque vitrocéramique et lave-vaisselle - colonne de lavage dans l'appartement, buanderie à l'étage - appartement entièrement parqueté - douche/WC séparés - bain/WC avec baignoire - terrasse dans la cour intérieure et balcon ensoleillé - grande cave avec bra...
Détail des loyers
- Loyer net
- CHF 2’090
- Coûts supplémentaires
- CHF 250
- Total des loyers
- CHF 2’090
Détails du bien
- Disponible à partir de
- Sur accord
- Pièces
- 4.5
- Année de construction
- 2021
- Surface habitable
- 107 m²
- Étage
- 2ème



