1 / 11

Appartement à louer - 4132 Muttenz

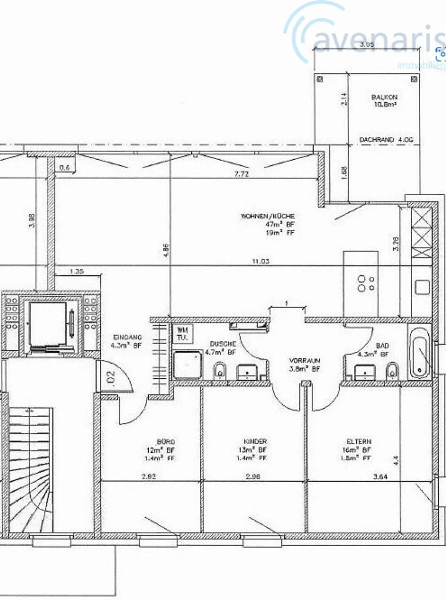
4.5 pièces • 105 m² • 1er étage
CHF 2’630.-
CHF 301 m² / year

Pourquoi vous aimerez ce bien

Haute efficacité énergétique

Ventilation passive innovante

Balcon couvert avec vue sur le jardin

Organiser une visite

Réserver une visite aujourd'hui !

avenaris Immobilien AG
Cette description a été traduite automatiquement depuis Allemand.

Vivre et se sentir bien : appartement moderne à louer avec option d'achat

Efficacité énergétique, confort et équipements modernes combinés

Nous sommes ravis de vous présenter ce spacieux appartement de 4,5 pièces en copropriété dans un emplacement privilégié à Muttenz, dans un immeuble bien entretenu avec ascenseur. L'appartement impressionne non seulement par son emplacement central, mais aussi par sa haute efficacité énergétique et ses équipements durables. Le confort et la sensibilisation à l'environnement vont de pair ici. La façade du bâtiment a été fraîchement p...

Détails du bien

Disponible à partir de
10.10.2025
Pièces
4.5
Année de construction
2010
Surface habitable
105
Étage
1er

Caractéristiques

Balcon
Ascenseur

Points d'intérêt à proximité

Transports publics - 0.4 km
Commerces - 0.3 km
École primaire - 0.6 km

Agence

avenaris Immobilien AG
Adresse:Kannenfeldstrasse 56, 4056, Basel
Ref: 717
En ligne depuis
28/09/2025
il y a 19 jours

Localisation

4132 Muttenz