Attique à louer - Via Sasso Corbaro 4, 6593 Cadenazzo
Pourquoi vous aimerez ce bien
Balcon spacieux avec pare-soleil
Accès par ascenseur au dernier étage
Animaux de compagnie acceptés sous conditions
Organiser une visite
Réserver une visite avec Patrizia aujourd'hui !
Cadenazzo - Residenza Incontro - 4.5 Zimmer, 4. und letztes Obergeschoss
Zu vermieten ist eine 4.5-Zimmer-Wohnung im 4. und letzten Obergeschoss, in einem Gebäude mit 8 Wohneinheiten und Aufzug, erst kürzlich erbaut, in einer gut erschlossenen Gegend, in unmittelbarer Nähe zum Bahnhof und zu den Schulen.
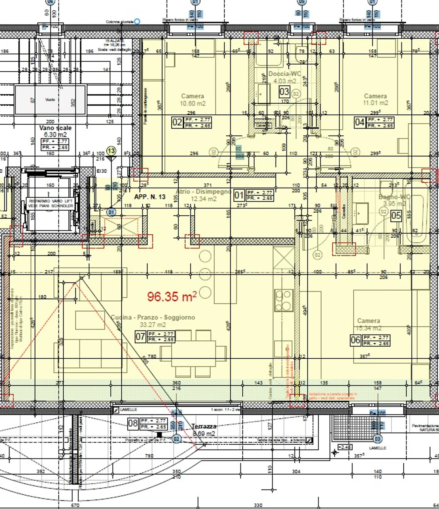
Das Mietobjekt mit 96.35 m² besteht aus:
· Vorraum mit bequemem Einbauschränkchen;
· großem Wohnzimmer mit offener Küche;
· großem Balkon (8.69 m²) mit Markise;
· Flur;
· Schlafzimmer mit eigenem Bad mit Wanne;
· 2 Zimmern;
· Dusche mit Fenster.
Im Erdgeschoss befinden sich d...
Détail des loyers
- Loyer net
- CHF 1’710
- Coûts supplémentaires
- CHF 160
- Total des loyers
- CHF 1’710
Détails du bien
- Disponible à partir de
- 19.11.2025
- Pièces
- 4.5
- Année de construction
- 2017
- Surface habitable
- 96 m²
- Étage
- 4ème




