Appartement à louer - Neuheim 4, 6275 Ballwil
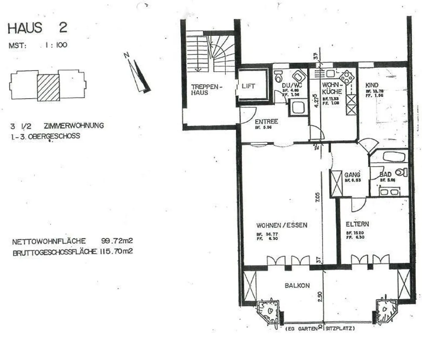
3.5 pièces • 100 m² • 2ème étage
CHF 2’030
CHF 244 m² / year
Pourquoi vous aimerez ce bien
Buanderie privée
Aire de jeux partagée
2 min à pied de la gare
Organiser une visite
Réserver une visite avec Lustenberger aujourd'hui !
Lustenberger
Cette description a été traduite automatiquement depuis Allemand.
Appartement 3.5 pièces
propre buanderie, grenier, cave
Salle commune à partager, aire de jeux
2 minutes à pied de la gare, 4 minutes à pied des commerces
1-2 places de parking dans le garage souterrain à Fr. 120 chacune.
Non-fumeur, pas d'animaux
Détail des loyers
- Loyer net
- CHF 2’030
- Coûts supplémentaires
- CHF 250
- Total des loyers
- CHF 2’030
Détails du bien
- Disponible à partir de
- Sur accord
- Pièces
- 3.5
- Année de construction
- 1991
- Année de rénovation
- 2025
- Surface habitable
- 100 m²
- Étage
- 2ème
- Étages du bâtiment
- 4
Caractéristiques
Garage
Balcon
Parking
Vue dégagée
Ascenseur
Cave
Pièce de stockage
Agence
En ligne depuis
27/10/2025
il y a 1 jour
Localisation
Neuheim 4, 6275 Ballwil



