Appartement à louer - Hühnerbühlstrasse 4, 3065 Bolligen
Pourquoi vous aimerez ce bien
Terrasse spacieuse de 49 m²
Finitions haut de gamme
Poêle suédois confortable
Organiser une visite
Réserver une visite avec Renata aujourd'hui !
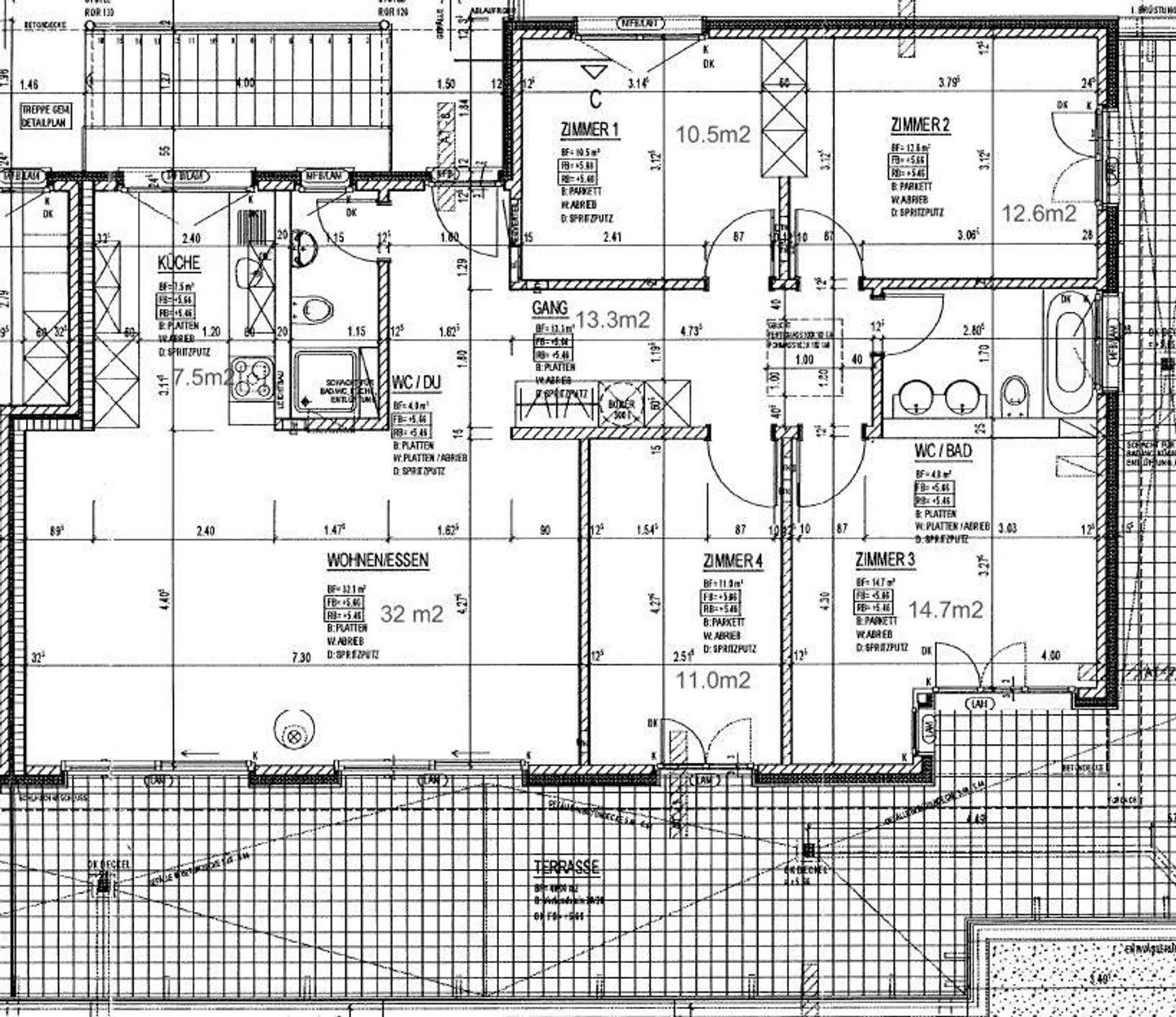
Appartement penthouse moderne de 5,5 pièces à bolligen
Cet appartement penthouse de 5,5 pièces près du centre de Bolligen impressionne par son haut niveau de finition, comme les sols carrelés dans le salon/cuisine/salle de bain et les parquets dans les chambres.
Le poêle suédois dans le salon vous réchauffera également pour cet appartement. De plus, cet appartement comprend une grande terrasse penthouse (49 m2).
La cuisine moderne est équipée de plans de travail en granit, d'un micro-ondes, d'une plaque de cuisson en vitrocéramique et d'un lave-vaisse...
Détail des loyers
- Loyer net
- CHF 2’600
- Coûts supplémentaires
- CHF 250
- Total des loyers
- CHF 2’600
Détails du bien
- Disponible à partir de
- Sur accord
- Pièces
- 5.5
- Année de construction
- 2005
- Surface habitable
- 110 m²
- Étage
- 2ème



