Duplex à louer - Grand'Rue 4, 2072 St-Blaise
Pourquoi vous aimerez ce bien
Charmant bâtiment de 1902
Proche des transports publics
À 10 min à pied du lac
Organiser une visite
Réserver une visite avec gpc aujourd'hui !
Grande Rue 4, Saint-Blaise - 6 pièces en duplex
Große Straße 4 à Saint-Blaise
Appartement avec 6 pièces en duplex au 3ème et 4ème étage.
Dans un petit bâtiment de 1902, composé de trois appartements et d'un magasin, idéalement situé à Saint-Blaise.
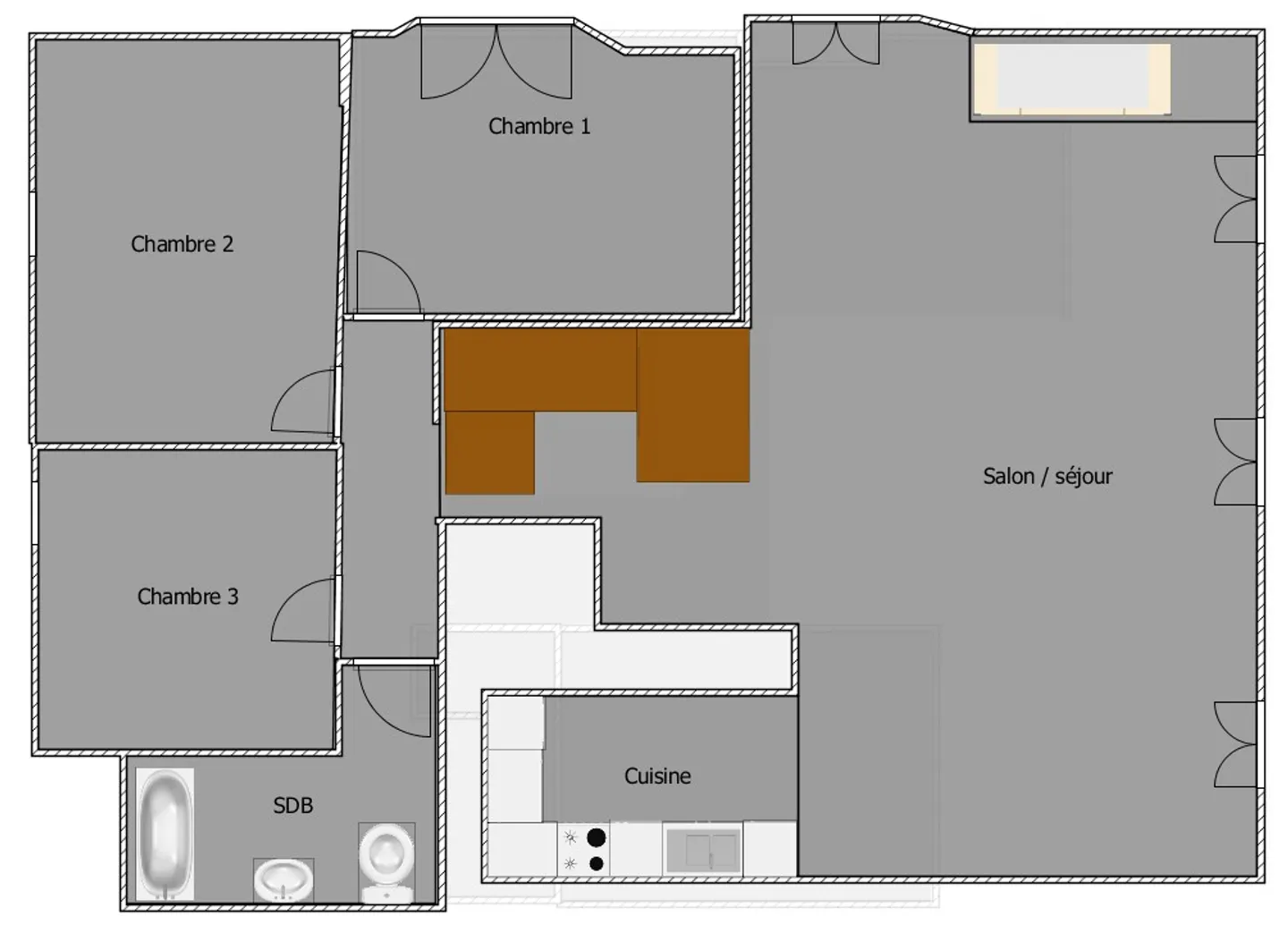
Répartition :
1er étage
Hall d'entrée
Cuisine équipée
Salle de bain, lavabo et toilettes
Grand salon avec cheminée
3 chambres
À l'étage supérieur
1 chambre
Douche, lavabo et toilettes
Galerie
Cave, débarras
Place de parking
Environnement :
Arrêt de bus à proximité
Magasins à 10 minutes
Entrées d'autoroute en 10 minut...
Détail des loyers
- Loyer net
- CHF 2’052
- Coûts supplémentaires
- CHF 385
- Total des loyers
- CHF 2’052
Détails du bien
- Disponible à partir de
- 01.04.2026
- Pièces
- 6
- Année de construction
- 1902
- Année de rénovation
- 2021
- Étage
- 3ème




