Appartement à louer - Goldwandstrasse 4, 5408 Ennetbaden
Pourquoi vous aimerez ce bien
Accès sans barrières
Grand balcon couvert
Cuisine moderne Miele
Organiser une visite
Réserver une visite aujourd'hui !
Première location nouveau bâtiment
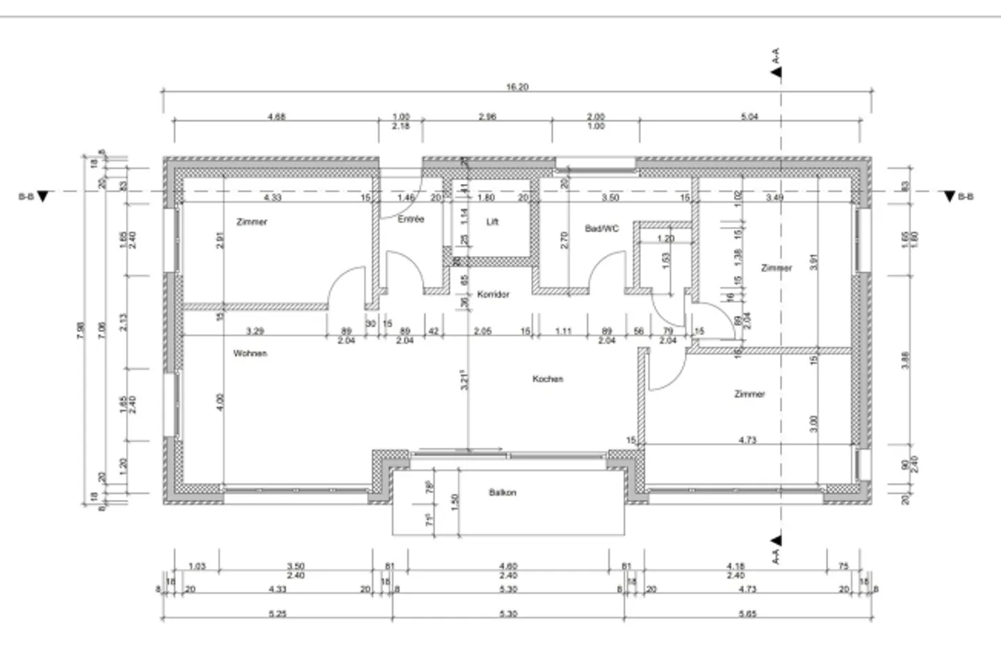
Dans un emplacement privilégié à Ennetbaden - sur Goldwandstrasse, nous louons un appartement de 4,5 pièces de haute qualité avec vue directe sur la Limmat et le quartier thermal de Baden dans la nouvelle maison bifamiliale.
Points forts de l'appartement
- Année de construction 2025
- Standard de propriété de haute qualité
- Ascenseur accessible sans barrière avec accès sans marches à l'appartement
- Espaces de vie lumineux
- Cuisine ouverte avec appareils de cuisine modernes de Miele
- Grand espace de...
Détail des loyers
- Loyer net
- CHF 3’350
- Coûts supplémentaires
- CHF 300
- Total des loyers
- CHF 3’350
Détails du bien
- Disponible à partir de
- 01.12.2025
- Pièces
- 4.5
- Année de construction
- 2025
- Surface habitable
- 87 m²
- Étage
- Rez



