Appartement à louer - Fischergässli 4, 6403 Küssnacht am Rigi
Pourquoi vous aimerez ce bien
Espaces de vie lumineux
Deux balcons
Chauffage écologique
Organiser une visite
Réserver une visite avec Nicole aujourd'hui !
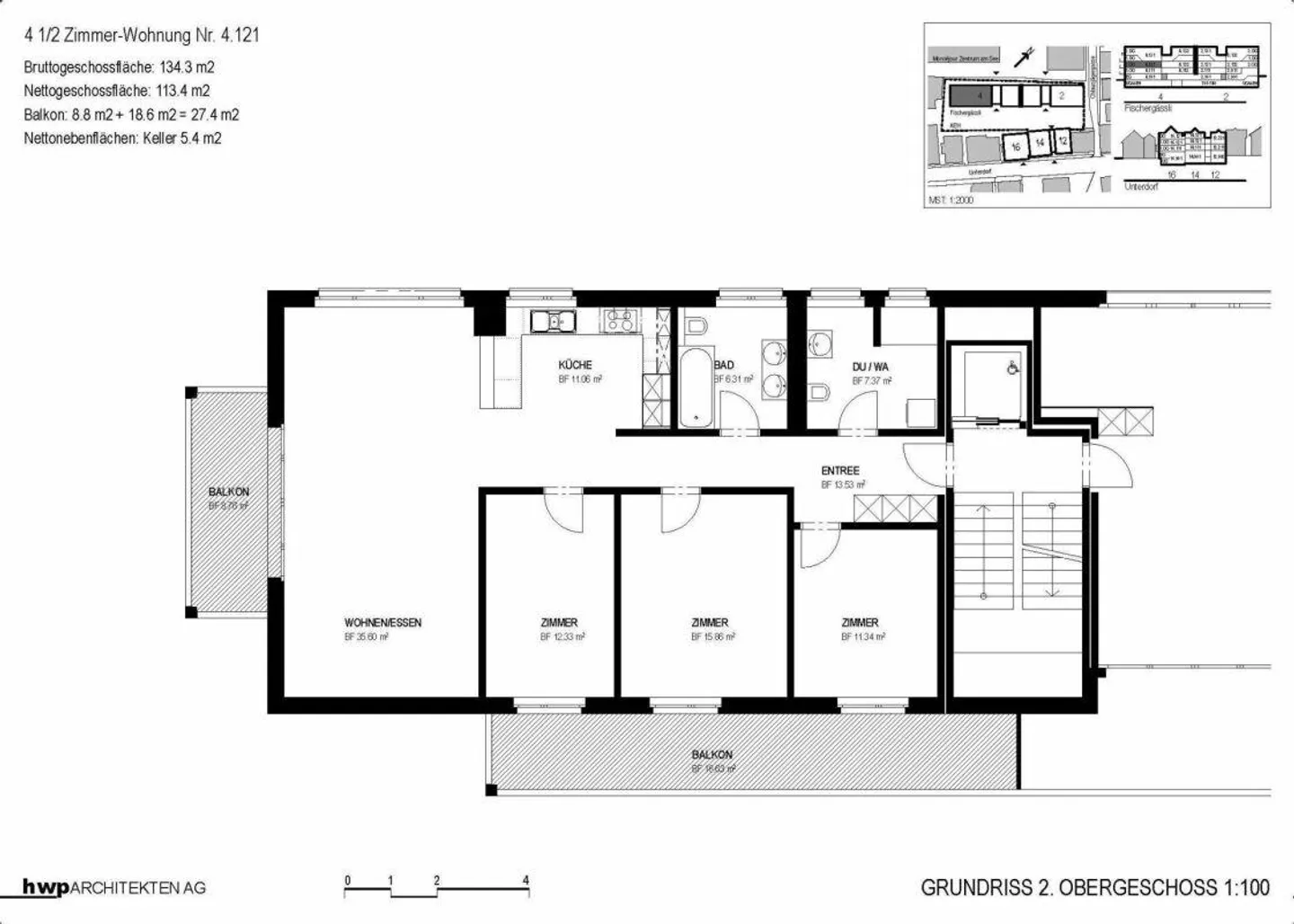
Appartement 4.5 pièces au centre du village
Appartement 4.5 pièces au centre du village
- Espaces de vie lumineux au centre
- Vue sur le lac
- 2 balcons
- Lave-linge et sèche-linge dans l'appartement
- Chauffage et production d'eau chaude par pompe à chaleur géothermique
- Commune fiscalement avantageuse
Une place de parking dans le garage peut être louée pour CHF 150.- par mois.
Détail des loyers
- Loyer net
- CHF 3’270
- Coûts supplémentaires
- CHF 170
- Total des loyers
- CHF 3’270
Détails du bien
- Disponible à partir de
- Sur accord
- Pièces
- 4.5
- Année de construction
- 2009
- Surface habitable
- 113 m²
- Étage
- 2ème



