Appartement à louer - Escherweg 4, 8304 Wallisellen
Pourquoi vous aimerez ce bien
Parquet en chêne lumineux
Hauteur sous plafond de 2,80m
Belle loggia pour se détendre
Organiser une visite
Réserver une visite avec Für aujourd'hui !
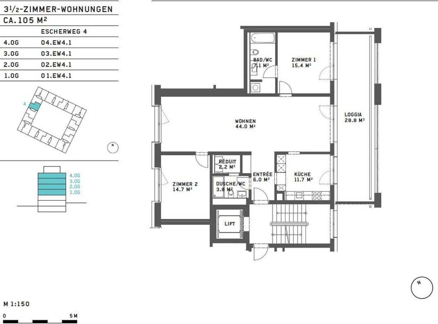
Appartement spacieux dans le quartier Richti directement à la gare de Wallisellen
Dans le quartier Richti, entre le centre commercial Glatt et la gare de Wallisellen, nous louons cet appartement de première classe à partir du 1er avril 2026.
L'appartement dispose des attributs suivants :
- parquet en chêne clair dans le salon et les chambres
- hauteur sous plafond de 2,80 mètres
- cuisine et salle de bain avec carrelage en céramique
- réduit avec machine à laver et sèche-linge
- salle de bain avec WC
- douche séparée avec WC
- belle loggia
- ventilation contrôlée de l'espace de vie
Une...
Détail des loyers
- Loyer net
- CHF 2’867
- Coûts supplémentaires
- CHF 205
- Total des loyers
- CHF 2’867
Détails du bien
- Disponible à partir de
- Sur accord
- Pièces
- 3.5
- Surface habitable
- 105 m²
- Étage
- 4ème



