1 / 10

Appartement à louer - Zeltlistrasse 3b, 8575 Bürglen TG

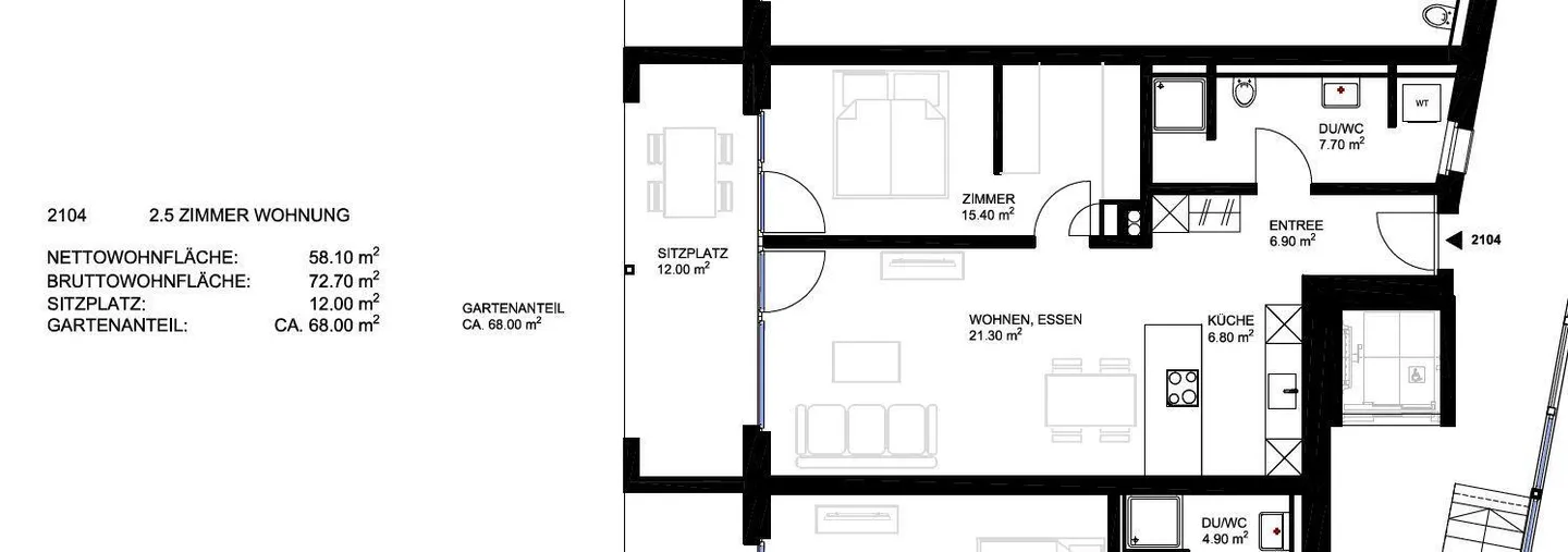
2.5 pièces • 58 m² • Rez-de-chaussée
CHF 1’390
CHF 288 m² / year

Pourquoi vous aimerez ce bien

Cuisine moderne spacieuse

Patio privé ensoleillé

Lave-linge dans l'appartement

Organiser une visite

Réserver une visite avec Kristina aujourd'hui !

Kristina Samardzic
IT3 St. Gallen AG
Cette description a été traduite automatiquement depuis Allemand.

Appartement moderne de 2,5 pièces avec terrasse

À Zeltlistrasse 3b à Bürglen TG, nous louons un appartement moderne et lumineux de 2,5 pièces au rez-de-chaussée.

L'appartement vous offre les commodités suivantes :

- cuisine moderne et spacieuse avec plaque de cuisson en vitrocéramique, lave-vaisselle, four et réfrigérateur

- salle de bain lumineuse avec douche, lavabo et toilettes

- terrasse ensoleillée

- hall d'entrée avec placard intégré pratique

- parquet dans tout l'appartement

- propre tour de lavage dans l'appartement

- ascenseur dans le bâtime...

Détail des loyers

Loyer net
CHF 1’390
Coûts supplémentaires
CHF 180
Total des loyers
CHF 1’390

Détails du bien

Disponible à partir de
Sur accord
Pièces
2.5
Surface habitable
58
Étage
Rez

Agence

IT3 St. Gallen AG
Adresse:St. Gallen, Burggraben 16, 9000
Ref: 1793.it3.9536-1004
En ligne depuis
22/10/2025
il y a 12 heures

Localisation

Zeltlistrasse 3b, 8575 Bürglen TG

Sources