Appartement à louer - Chemin Du Taulard 3b, 1032 Romanel-sur-Lausanne
Pourquoi vous aimerez ce bien
Cuisine ouverte moderne
Grand balcon avec véranda
Ascenseur et buanderie commune
Organiser une visite
Réserver une visite avec Christiane aujourd'hui !
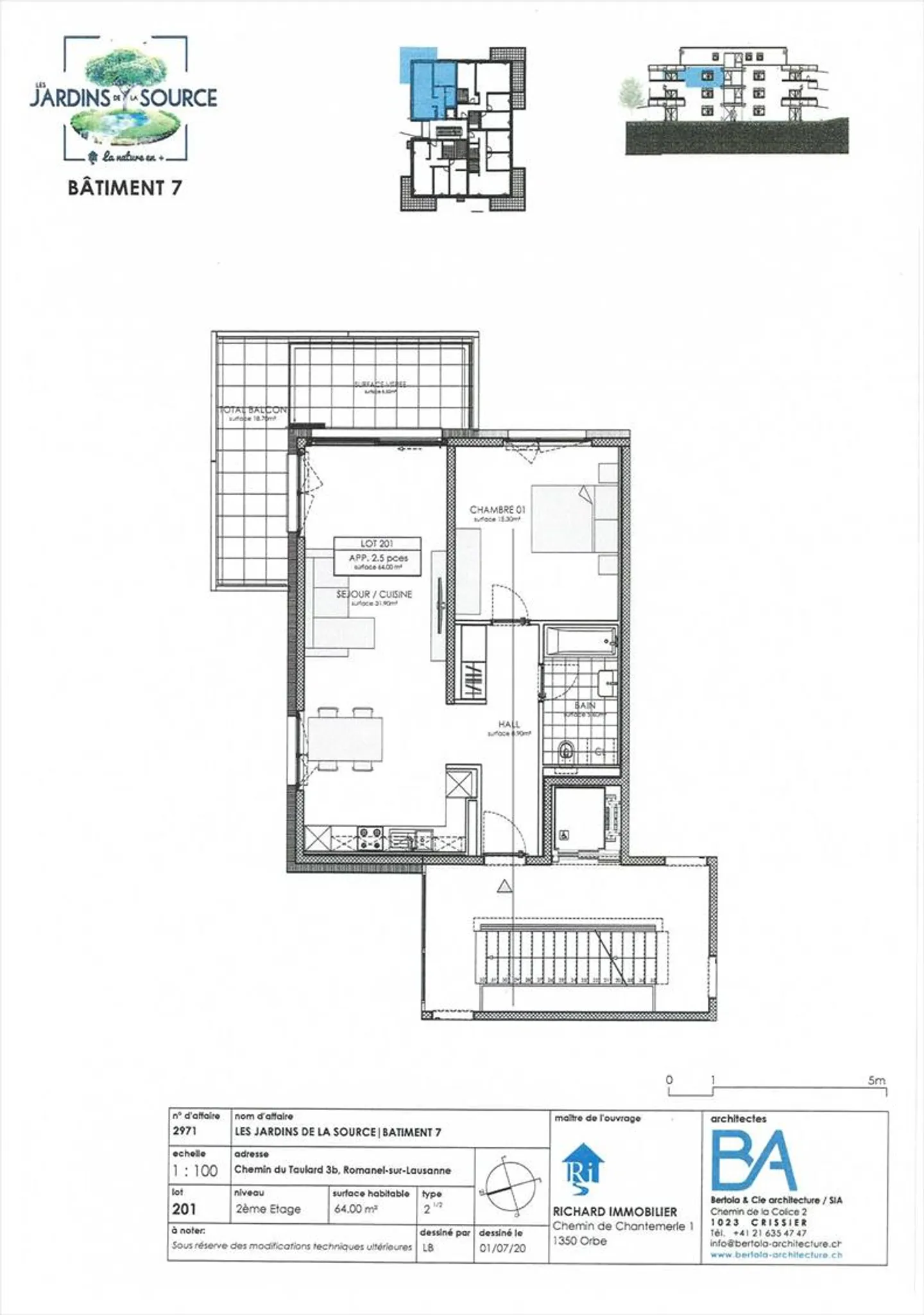
Appartement 2.5 pièces
Beau 2.5 pièces à louer pour le 1er février 2026
Romanel-sur-Lausanne, à deux pas de la gare du LEB, bel appartement de 2,5 pièces, comprenant :
- hall d'entrée avec armoire murale
- cuisine ouverte entièrement équipée
- grand séjour donnant accès sur un beau balcon avec véranda (vitrages complètement amovibles)
- 1 chambre
- salle de bains/WC avec raccordement pour l'installation d'une colonne de lavage
- une cave
L'immeuble dispose d'un ascenseur et d'une buanderie commune.
Place de parc dans le garage...
Détail des loyers
- Loyer net
- CHF 1’820
- Coûts supplémentaires
- CHF 170
- Total des loyers
- CHF 1’820
Détails du bien
- Disponible à partir de
- Sur accord
- Pièces
- 2.5
- Salles de bain
- 1
- Surface habitable
- 64 m²



