Attique à louer - Gerliswilstrasse 39, 6020 Emmenbrücke
Pourquoi vous aimerez ce bien
Parquet moderne en stratifié
Carrelage en pierre élégant
Cuisine laquée avec granit
Organiser une visite
Réserver une visite aujourd'hui !
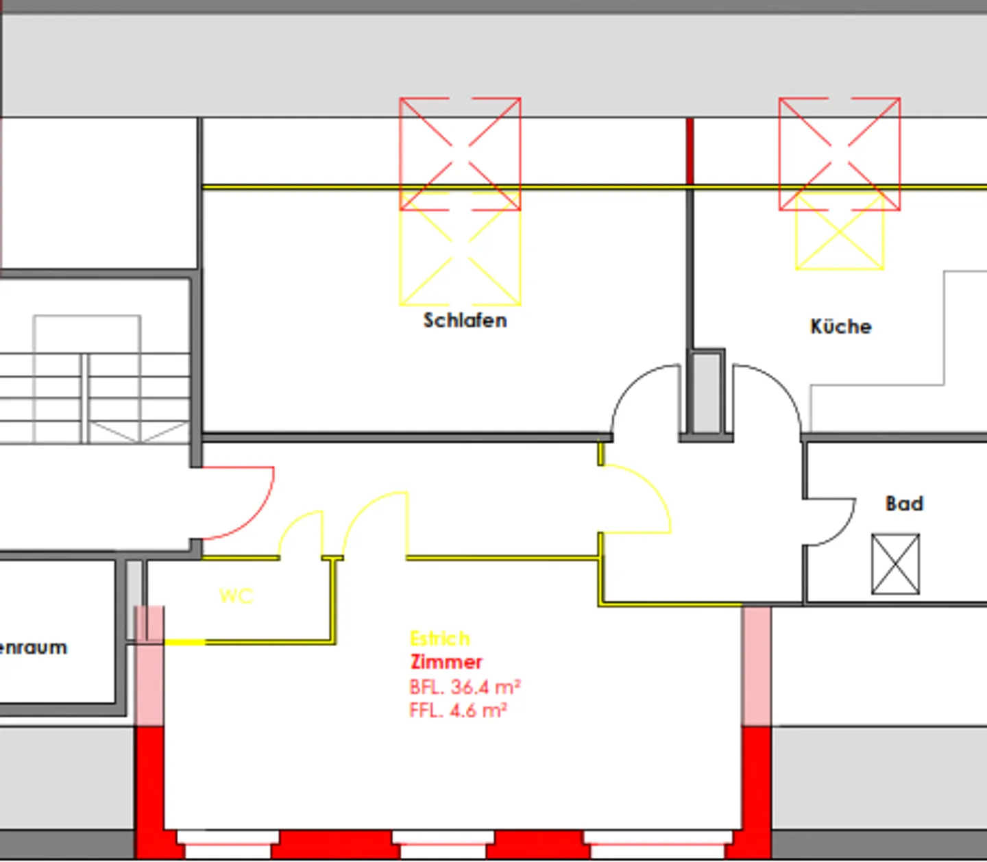
Appartement de toit confortable dans le style loft
L'appartement a été créé en 2021. L'immeuble collectif est situé dans un emplacement central. Les transports publics et les commerces se trouvent à proximité immédiate.
Points forts de l'appartement :
- Sol en stratifié moderne et sombre en aspect parquet
- Les salles d'eau disposent de carrelages clairs en aspect pierre
- Cuisine avec façades laquées et plan de travail en granit, y compris lave-vaisselle
- Propre machine à laver avec fonction sèche-linge dans l'appartement
- Compartiment de cave disp...
Détail des loyers
- Loyer net
- CHF 1’443
- Coûts supplémentaires
- CHF 140
- Total des loyers
- CHF 1’443
Détails du bien
- Disponible à partir de
- Sur accord
- Pièces
- 2
- Année de rénovation
- 2020
- Étage
- 5ème
- Étages du bâtiment
- 5



