Appartement à louer - Tillierstrasse 38, 3005 Bern
Pourquoi vous aimerez ce bien
Balcon spacieux pour se détendre
Cuisine moderne avec granit
Deux salles de bains élégantes
Organiser une visite
Réserver une visite avec Melden aujourd'hui !
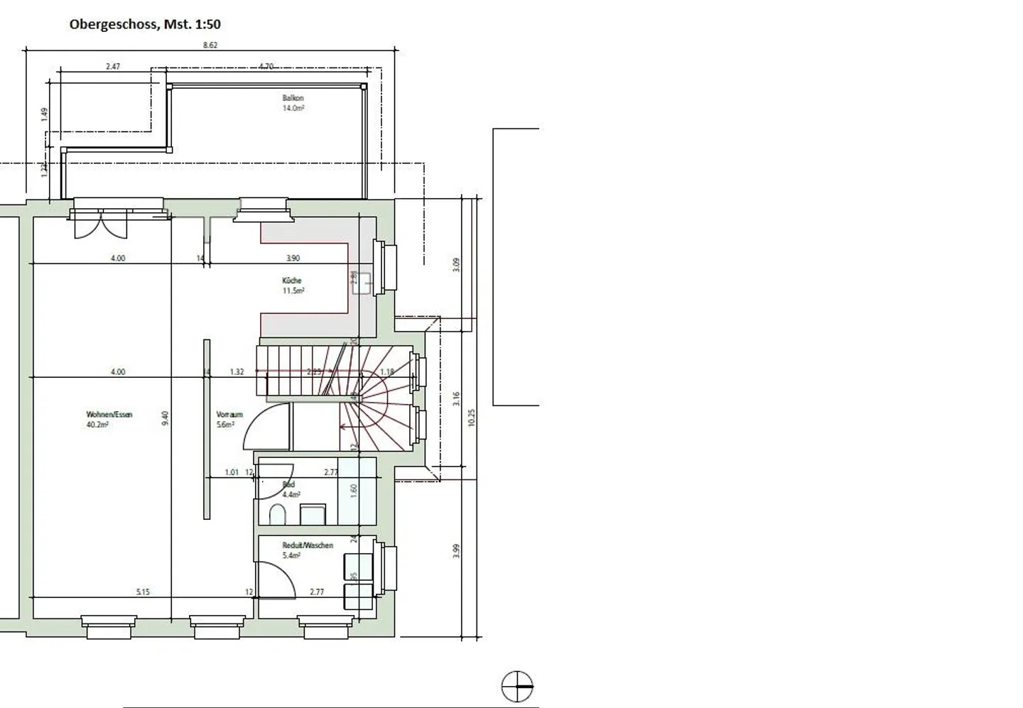
Belle appartement en maisonette 4.5
Nous louons un appartement en maisonette 4.5 à Tillierstrasse 38 à Berne à partir du 1er février 2026.
- Cuisine avec plaque de cuisson en céramique vitrocéramique, plan de travail en granit, four et lave-vaisselle
- Trois chambres fermées
- Grand balcon
- Deux salles de bains avec douche, lavabo et WC
- Parquet et carrelage
- Compartiment de grenier
- Réduit avec machine à laver et sèche-linge
Une place de parking peut être louée pour CHF 100.- par mois.
Si nous avons éveillé votre intérêt, n'hésitez pa...
Détail des loyers
- Loyer net
- CHF 3’800
- Coûts supplémentaires
- CHF 300
- Total des loyers
- CHF 3’800
Détails du bien
- Disponible à partir de
- Sur accord
- Pièces
- 4.5
- Étage
- 12ème
- Étages du bâtiment
- 2



