Duplex à louer - Amthausgasse 35, 4242 Laufen
Pourquoi vous aimerez ce bien
Charme du style loft
Balcon couvert accueillant
Proche des transports publics
Organiser une visite
Réserver une visite avec Monika aujourd'hui !
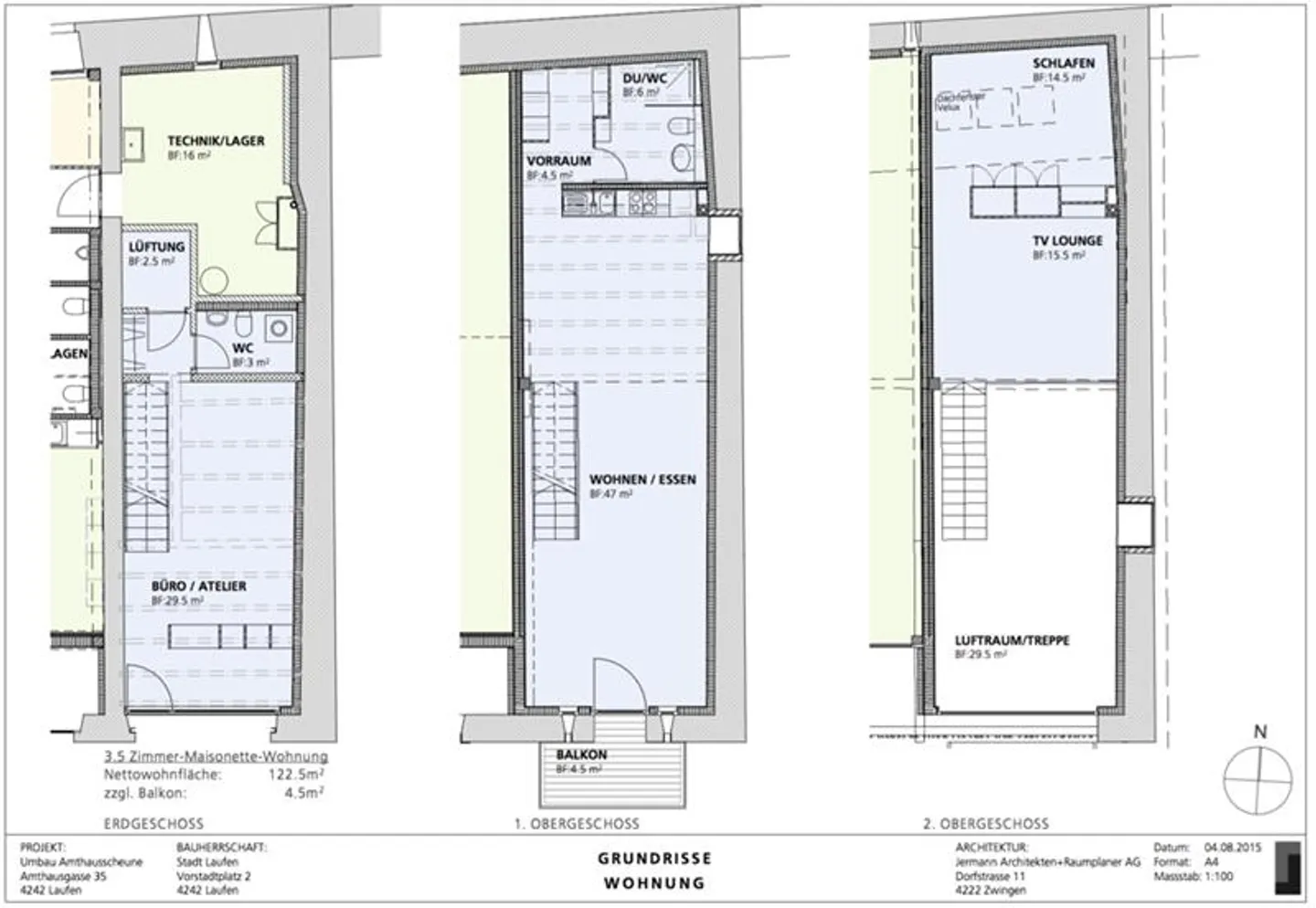
Appartement en duplex unique de 2,5 pièces avec balcon dans un emplacement central
Nous louons cette exceptionnelle maisonette de 2,5 pièces, répartie sur trois étages du rez-de-chaussée au dernier étage. Le design de type loft allie le charme d'un ancien bâtiment à un confort de vie contemporain et des finitions de haute qualité. Un balcon couvert complète cette offre attrayante.
Emplacement & Environnement : L'appartement se trouve à seulement quelques minutes à pied de l'arrêt de bus et de la gare SBB - Bâle est accessible en seulement 25 minutes en voiture ou en 17 minu...
Détail des loyers
- Loyer net
- CHF 2’360
- Coûts supplémentaires
- CHF 110
- Total des loyers
- CHF 2’360
Détails du bien
- Disponible à partir de
- 10.06.2025
- Pièces
- 2.5
- Surface habitable
- 120 m²
- Étage
- 1er
- Étages du bâtiment
- 3



