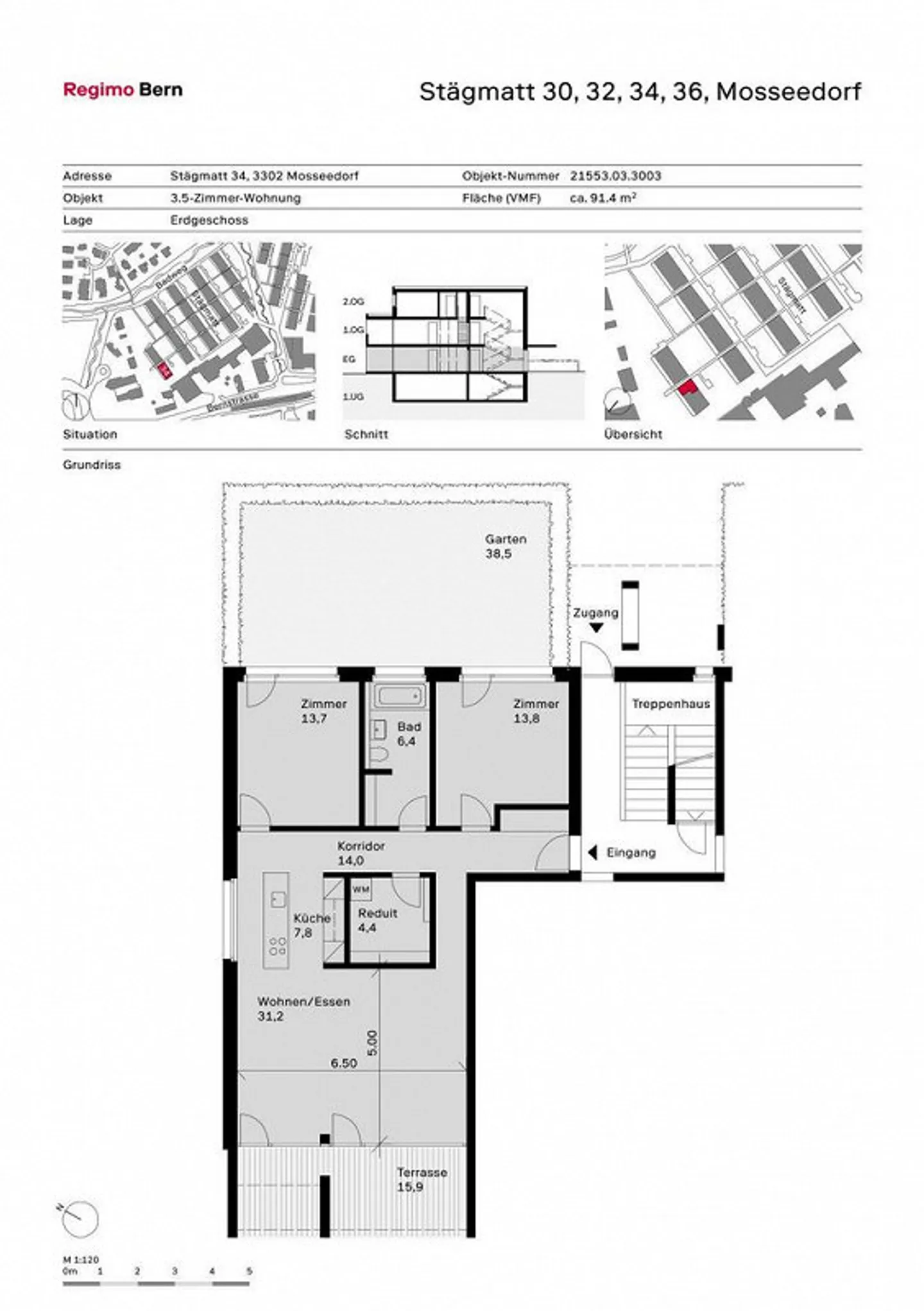
Appartement à louer - Stägmatt 34, 3302 Moosseedorf
Pourquoi vous aimerez ce bien
Cuisine moderne ouverte
Charmante terrasse jardin
Zone rurale calme
Organiser une visite
Réserver une visite aujourd'hui !
Vues ensoleillées - vivre avec une belle terrasse de jardin
À Moosseedorf, la vie est agréable à bien des égards. Dans cette commune en plein essor à la périphérie nord de l'agglomération de Berne, la tranquillité rurale se combine avec une vie vibrante. Les familles, les couples et les célibataires sont les bienvenus pour cultiver leur propre style de vie dans un environnement attrayant.
Pour votre qualité de vie :
- Revêtements de sol en parquet et en carrelage
- Cuisine moderne et ouverte
- Salle de bain avec baignoire/WC
- Réduit avec machine à laver et s...
Détail des loyers
- Loyer net
- CHF 2’081
- Coûts supplémentaires
- CHF 250
- Total des loyers
- CHF 2’081
Détails du bien
- Disponible à partir de
- 01.06.2026
- Pièces
- 3.5
- Année de construction
- 2012
- Surface habitable
- 94 m²
- Étage
- Rez



