Appartement à louer - Halta 34, 3186 Düdingen
Pourquoi vous aimerez ce bien
Proche des transports publics
Balcon avec vue paisible
Espaces communautaires animés
Organiser une visite
Réserver une visite avec M. aujourd'hui !
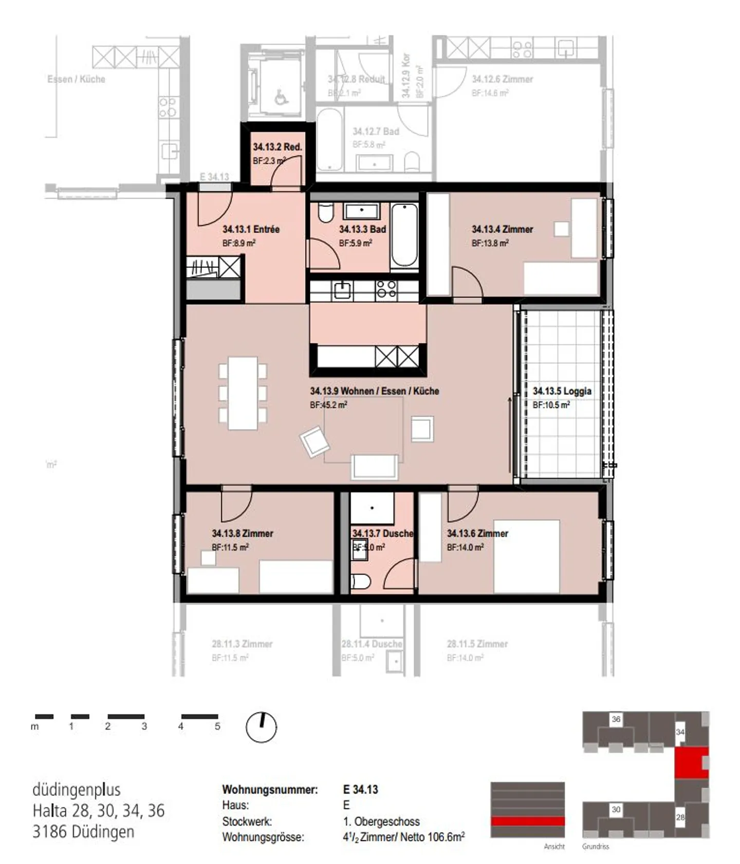
Appartement 4.5 pièces
Votre nouveau domicile à Guin - Ihr neues Zuhause in Düdingen
Nous vous proposons des logements moderne, contemporains et attrayants à seulement quelques mètres de la gare de Guin et l'entrée d'autoroute se trouve à moins de 5 kilomètres.
Ces appartements de 4.5 pièces se composent d'un hall d'entrée, d'une cuisine, d'un séjour, de deux chambres, d'un réduit, une salle de douche/WC, une salle de bains/WC ainsi qu'un balcon.
Une cave vient compléter ce bien.
Des places de parc souterraines sont é...
Détail des loyers
- Loyer net
- CHF 2’210
- Coûts supplémentaires
- CHF 360
- Total des loyers
- CHF 2’210
Détails du bien
- Disponible à partir de
- Sur accord
- Pièces
- 4.5
- Salles de bain
- 2
- Surface habitable
- 106 m²



