Appartement à louer - Route De Cité-Ouest 32, 1196 Gland
Pourquoi vous aimerez ce bien
Vue imprenable sur le lac
Décor moderne et lumineux
Proche de Genève et Lausanne
Organiser une visite
Réserver une visite aujourd'hui !
Appartement vue lac - proche de genève & lausanne
Admirez la vue imprenable sur le lac Léman depuis cet appartement lumineux au 10e étage à Gland - emplacement idéal à proximité de Genève et Lausanne.
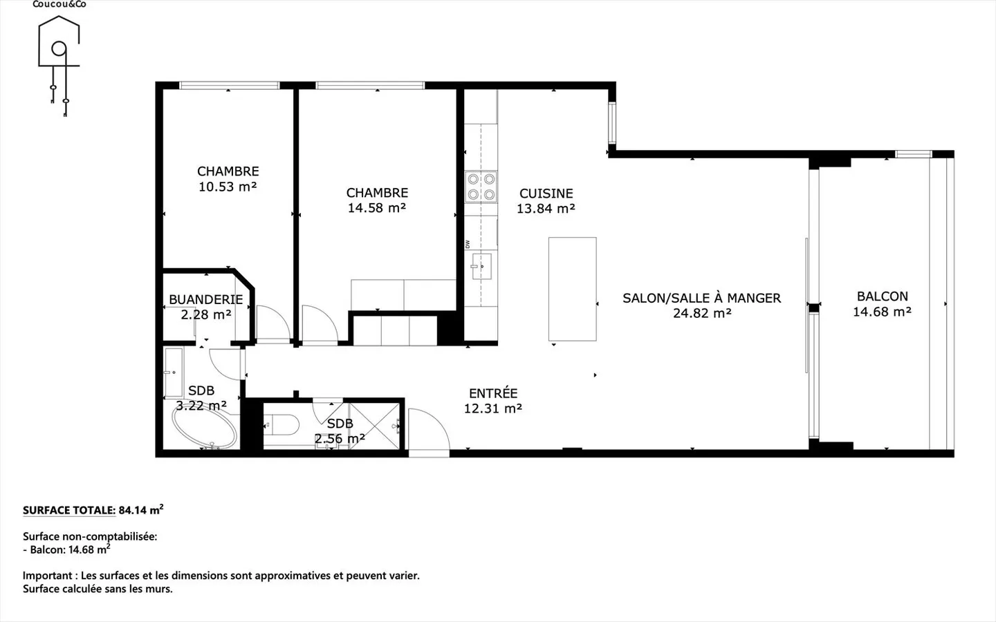
L'appartement est entièrement meublé et équipé pour votre plus grand confort :
- Une première chambre avec un lit Queen size.
- Une deuxième chambre meublée avec deux lits simples.
- Une cuisine ouverte, entièrement équipée, avec un espace repas. Elle est équipée d'un réfrigérateur, un four, une cuisinière et un lave-vaisselle, ainsi que d'une mac...
Détails du bien
- Disponible à partir de
- 01.01.1970
- Pièces
- 3.5
- Étage
- 10ème



