Appartement à louer - Zeltweg 31, 8032 Zürich
Pourquoi vous aimerez ce bien
Agencement flexible
Deux balcons ensoleillés
Proche des transports publics
Organiser une visite
Réserver une visite avec Kiana aujourd'hui !
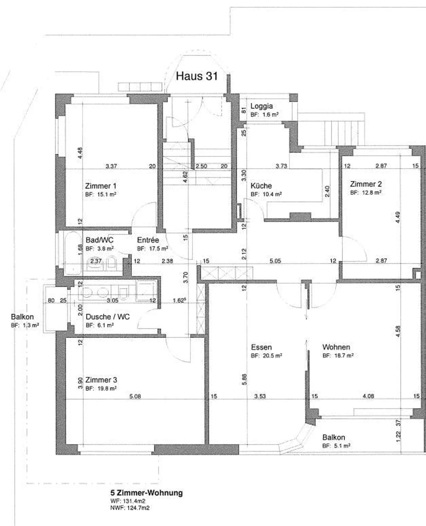
Vivre avec charme dans le quartier prisé de Hottingen
À partir du 01.05.2026, nous louons ce magnifique appartement de 5 pièces à quelques minutes à pied de Kreuzplatz.
L'appartement de style ancien dispose d'une cuisine et de deux salles de bains, de trois chambres et d'un salon relié à la salle à manger. Les nombreuses fenêtres rendent l'appartement très lumineux et lui donnent un style charmant.
Points forts de l'appartement :
- Aménagement flexible des pièces grâce à la porte de communication entre deux chambres
- Placards intégrés pratiques pour u...
Détail des loyers
- Loyer net
- CHF 5’490
- Coûts supplémentaires
- CHF 450
- Total des loyers
- CHF 5’490
Détails du bien
- Disponible à partir de
- Sur accord
- Pièces
- 5
- Surface habitable
- 131 m²
- Étage
- Rez

