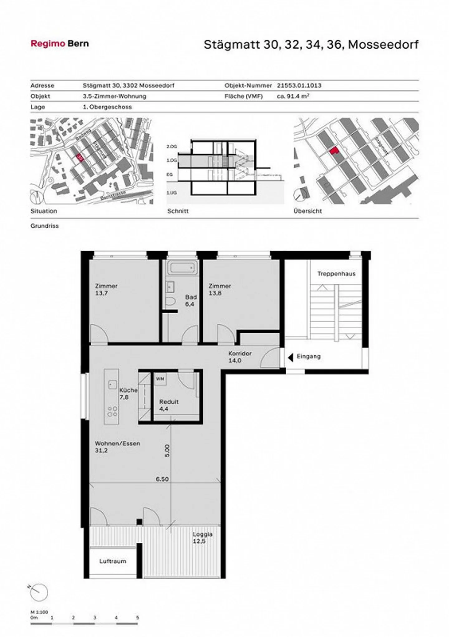
Appartement à louer - Stägmatt 30, 3302 Moosseedorf
Pourquoi vous aimerez ce bien
Design moderne et spacieux
Cuisine ouverte avec lave-vaisselle
Balcon pour se détendre
Organiser une visite
Réserver une visite aujourd'hui !
Seul ou à deux : Vous pourriez aimer cet endroit
Vous pourriez le regretter si vous arrivez trop tard. Car cet appartement est situé dans un endroit central tout en étant dans la verdure. Il est spacieux, moderne et convainc par un rapport qualité-prix équitable.
Pour votre qualité de vie :
- cuisine ouverte avec vitrocéramique et lave-vaisselle
- salle d'eau avec baignoire/WC
- parquet dans le salon, la cuisine et la chambre
- carrelage dans la salle d'eau
- réduit avec sa propre tour de lavage
- balcon
- cave
En supplément sur demande : place de park...
Détail des loyers
- Loyer net
- CHF 2’070
- Coûts supplémentaires
- CHF 230
- Total des loyers
- CHF 2’070
Détails du bien
- Disponible à partir de
- 01.03.2026
- Pièces
- 3.5
- Année de construction
- 2012
- Surface habitable
- 94 m²
- Étage
- 1er



