Appartement à louer - Sternenstrasse 3, 3380 Wangen an der Aare
Pourquoi vous aimerez ce bien
Plafonds hauts pour une sensation d'espace
Cuisine et fenêtres rénovées
Terrasse pour se détendre dehors
Organiser une visite
Réserver une visite aujourd'hui !
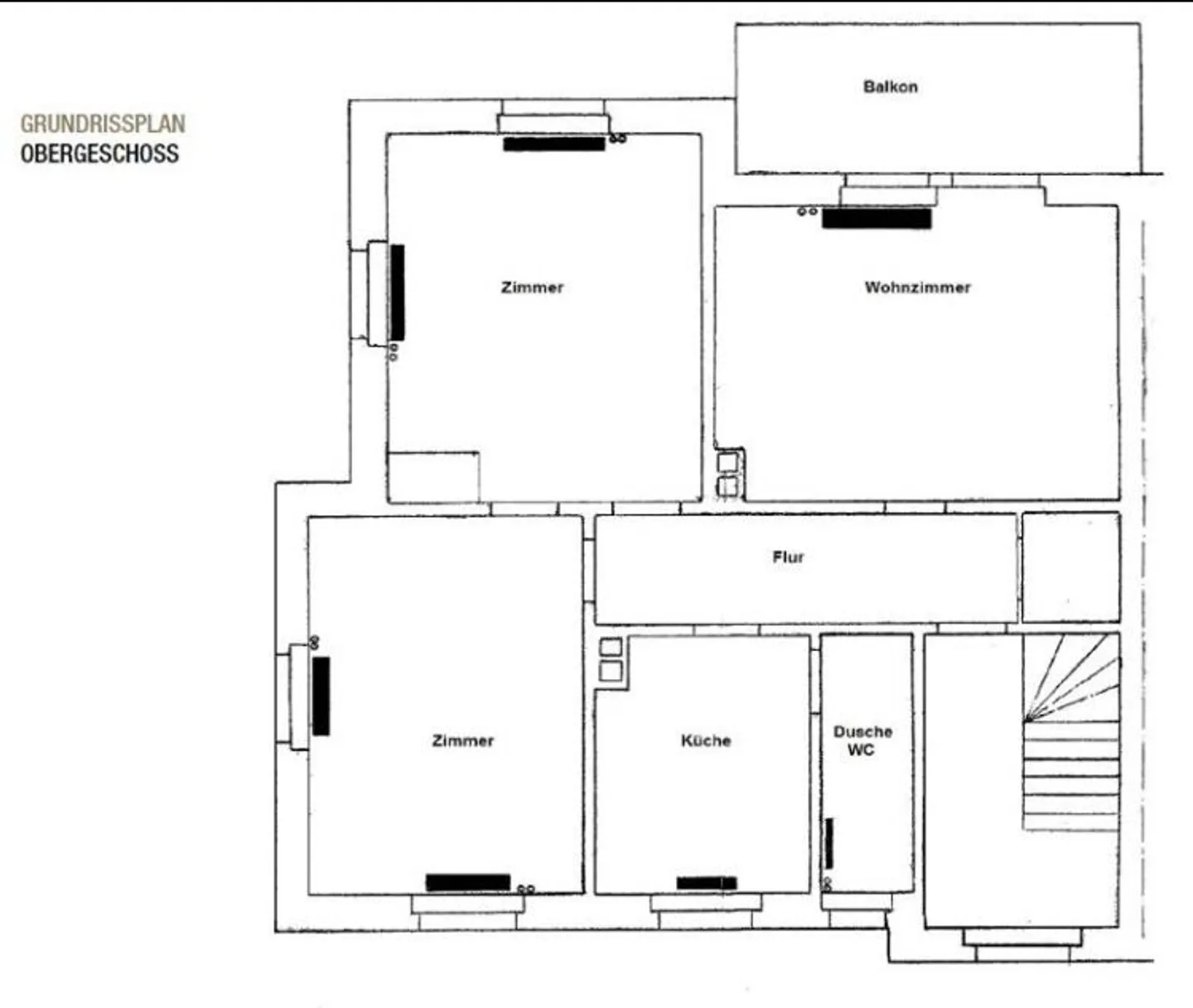
Appartement de 3 pièces
Nous louons un charmant appartement lumineux de 3 pièces dans un immeuble ancien au 1er étage, dans une maison de 4 familles, dans un emplacement calme et central à Wangen an der Aare. L'appartement offre une atmosphère de vie agréable avec ses hauts plafonds typiques des vieux bâtiments et dispose d'une terrasse. L'appartement a été partiellement rénové :– nouvelles fenêtres– nouvelle cuisine– salle de bain sera terminée avant la date d'entrée. Wangen an der Aare offre une bonne infrastructure,...
Détail des loyers
- Loyer net
- CHF 1’300
- Coûts supplémentaires
- CHF 250
- Total des loyers
- CHF 1’300
Détails du bien
- Disponible à partir de
- Sur accord
- Pièces
- 3
- Surface habitable
- 70 m²
- Étage
- 1er



